清水佳湖220㎡ 简欧风格
2020-05-17 11:19:05 查看人数 1755
案例面积:220㎡
案例户型:四居室
装修造价:约25万
案例风格:简欧
简欧居家就是有种幸福感,尤其浅色木纹天生的清爽明净色温,搭配灰色火浅色的软装,偶尔出现的绿植,或者点撞色,都体现出温柔的质感。
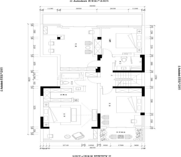
户型图
优点: 1.户型比较方正,动线划分合理; 2.每个卧室都有大飘窗,通风采光较好。 缺点: 1.入户正对餐厅,没有鞋柜空间; 2.餐厅面积偏小。
客厅
空间整体采用了欧式的风格,感觉就是洁白无瑕,整体给人一种以舒适和温暖的风格。
卧室
在卧室的分部中,每个空间都保证了空间的照明,增强了空间的通透性,足够的收纳和活动区域满足了日常的生活起居以及娱乐。
厨房
厨房的位置也是窗户保证了空间的照明和通透性。同时厨房空间的充足的橱柜,保证了厨房足够的收纳,不会造成杂乱。
餐厅
餐厅足够的活动区域和充裕的采光环境,在于家人进餐时也是一幅美丽的画卷。
卫生间
在卫生间做了干湿分离,保证生活的清爽根据卫生间结构定做的浴缸,在美观的同时也保证了在一天的劳累之后到家卸下一身的疲劳。
