白麓城 155㎡ 现代极简
2021-01-17 14:34:44 查看人数 1506
案例面积:155㎡
案例户型:四居室
装修造价:约15万
案例风格:现代
改造方案 1.一层空间是休闲娱乐的活动空间,拆除了原有阳台推拉门,使客厅变得更加通透宽敞; 2.二层是休息的空间,主卧室及卫生间的改动,增加了更多的功能性,使卫生间的格局变得更加舒适享受; 3.由于生活阳台的不合理性,增加了生活阳台的空间布局调整。
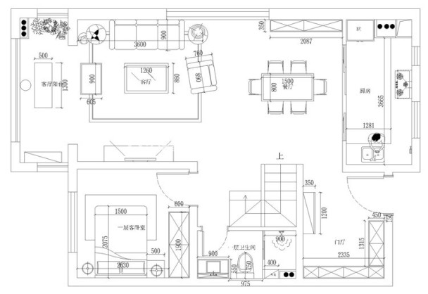
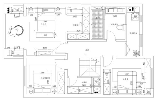
户型图
户型解析 1.南北通透,采光通风较好; 2.动线流畅,功能区分明确; 3.卫生间较小; 4.缺少生活阳台。
客厅
客厅以灰白色为主,金色、黑色和深棕色做点缀,造型简洁而富有质感。两侧的背景墙与玄关的背景墙保持一致,都是深灰色的乳胶漆为主,用石膏线和金属线条,勾勒出矩形的线框,而电视背景墙则用大理石纹的瓷砖为背景,整体造型富有层次感,却不显得过于跳脱。
卧室
卧室整体造型和客厅保持一致,在色调上以莫兰迪色系的灰蓝色和象牙白为主,金色和浅灰色为辅,静谧又温柔。浅灰色的双人床和床尾凳,象牙白的床头柜和超大衣帽间,浅灰色的渐变地毯和精致的灯饰,每一个物品的组合都是美好而实用。
次卧
儿童房以粉色和象牙白为主,蓝色、灰色和咖色为辅,满满的温柔气息。极具梦幻造型的公主床和卡通造型的挂画,每一个细节都充满了童话的色彩。
玄关
入户门厅设置象牙白L型超大鞋帽间,清爽实用。墙面则是深灰色的乳胶漆为主,用石膏线和金属线条,勾勒出矩形的线框,并在其间放置一幅,有延伸视觉的装饰画,下方在放置一个金边的莫兰迪色系的玄关柜,整体效果精致典雅。
