昆明湖-新中式雅韵
2019-08-07 11:18:57 查看人数 2058
案例面积:126㎡
案例户型:四居室
装修造价:约23万
案例风格:新中式
本案空间以现代建筑的爽朗线条构筑一个家的轮廓,慢慢填充生活及精神所需。质朴的芒果木花器,富年代感的木雕,极具特色的中式古玩小件,艺术品明信片装裱成的小画……思绪跟着物件游走,勾勒出一个家有情有境的生活轨迹。每一件物品的背后,都有一个关于这个家的故事。
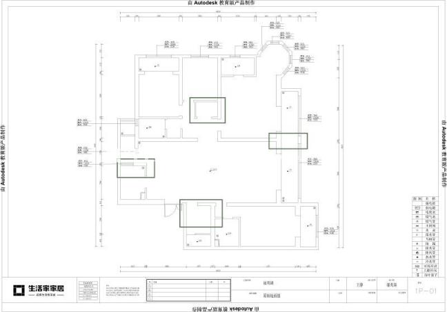
户型图
绿色线框里面是做了简单的改造,首先进门储物间的位置我们将他封闭起来,与卧室连在一起作为一个套房使用,包含衣帽间、卫生间、卧室、阳台。 厨房相对总面积来说偏小,我们将厨房那面墙拆掉扩大厨房面积,并且做了一个小吧台在中间隔断扩大使用率。 厨房与餐厅之间采用酒柜进行隔断,将餐厅与厨房区域划分 景观阳台与卧室的阳台之间进行隔断,将一半的景观阳台纳入卧室进行使用 书房外面的储物间打掉扩大公共区域
客厅
简洁的家具线条,精良的材质搭配,秉持御融设计“有品质的简朴,有节制的奢华”的品质理念。只一抹惊艳,隐逸东方,当代时尚的调性中蕴含东方的内敛气息,取其形表其意,去掉繁琐的制式,回归东方意蕴核心。没有太多造作的修饰与约束,更多的是在各个细节体现出对文化的极致追求。
卧室
卧室的设计中,色彩的运用清幽淡雅,纯净的白色和趋近自然的深木色是空间的主调,丝质与棉麻床品深具质感,蓝色背景造型、瓷器吊灯、花卉等各类小品摆设其中,相映成趣,空间气质盈盈。
餐厅
餐厅空间在生活中是一个十分重要的空间,是家人联系感情与交流频率最高的地方。当温润的实木扶手餐椅搭配洁净餐桌,熟栗色的酒柜与触感温暖醇厚的米白色硬包,构筑成一家人最温暖坚实的港湾。厨房有烟火,身旁有家人,心里有爱,这是生活最平凡而美好的模样。用心筑建一个美好的空间来承载。
书房
简洁舒适的摆设让整个书房的人文气息轰然而出,一本书一杯茶也许就是一个下午都可以在书的海洋里面畅游。
