华洲城云顶110现代风格
2020-11-29 10:09:31 查看人数 2247
案例面积:110㎡
案例户型:三居室
装修造价:约14万
案例风格:现代
本案是以孩子婚房考虑,暂时是两代三口之家长期居住。通过和业主的沟通,大人没有太多的想法只有储物功能需求,主要还以孩子要求为主,孩子是做软件开发,游戏之类,对于房子一定有一个多功能房。颜色的要求主要以灰色为主,以暖色系为辅点缀。
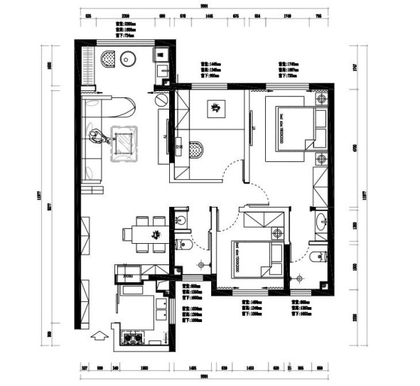
户型图
平层110平 业主喜欢北欧风格 户型方正 没有浪费一家三口合理规划。
客厅
首先是墙面颜色,中灰,从开始的浅灰、深灰、烟灰色,多次对比选用了中灰作为背景,而把稍重一点的烟色放在了地面以衬托主次分明。选用调色的家居为了增加空间的冷暖结合,让柠檬黄的颜色更为跳点。柜子的颜色选用黑胡桃色作为底色图像黑色的冷调,最终表达冷而不怯的效果。
卧室
暂时是大人居住,色系偏女主人一些喜好,稍暖代粉一些,功能做了分离明显的划分,让睡眠、更衣、洗漱更方便。
厨房
做了小小改动,给餐厅冰箱让出了空间,但是不会让厨房使用变小,剩下的功能主要以女主人的生活习惯做了划分,满足洗、切、炒等划分做饭更方便。
