金辉公园里95平简约风格
2020-11-29 10:24:04 查看人数 2053
案例面积:95㎡
案例户型:三居室
装修造价:约14万
案例风格:现代
本案的女主是一位年轻漂亮的白领,因长时间生活在沿海城市,非常喜欢大海。所以在这个房子中客户商量了一个最喜欢的色系就是蓝色以保持出差内地也会保存蓝色的颜色面罩,此案最主要的想法就是我以轻装修、轻装饰的方式表达。但是客户要求为了后期好投资,一定要满足居住需求,所以在功能划分下依旧按照常规三口之家实施。
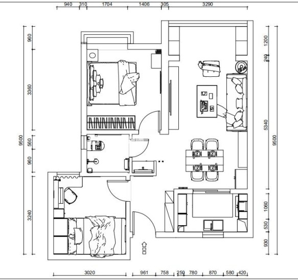
户型图
整体户型考虑实用 收纳 多功能房的考虑主要是增加储物功能,为了后期主人的投资考虑和要求,增加的储物和办公场所。干区的洗漱是后期改动添加的,利用过道的空间增加了使用价值
客厅
客餐厅依旧按照常规餐客分区考虑,以保证主人前期使用正常,或有招待当地朋友可以方便聚餐。中央空调的运用也是客户习惯了生活加上的。应主人的一句话“简单并不是减少自己的生活品质”
卧室
重新跳跃了一个颜色蓝色的跳眼用到了床头为背景再以窗帘的调色为辅加上奶灰色的墙面让整个空间不是那么的生疏,从而更能增加时尚感。
过道
玄关的添加主要为了体现卫生间干区的外墙颜色效果,隔开了入户门直对主卧门的弊端。
