绿地生态城101
2020-11-28 15:27:59 查看人数 785
案例面积:101㎡
案例户型:三居室
装修造价:约14万
案例风格:现代
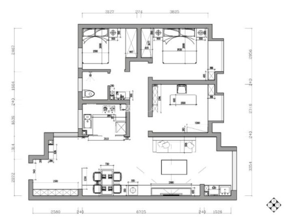
楼盘位于长安区(长宁新区) 紧邻谲河湿地公园,现目前是西安最靠近秦岭的商品住宅,交通较为便利,地铁六号线途经站(在建),附近有邮电大学,长安大学,现房。此户型为三室两厅一厨一卫紧凑型户型,客餐一体客厅朝阳门口有一独立入户花园,客厅结构较为紧凑,厨房较为狭小,间接采光。
户型图
门厅有一个独立的入户花园,接近有八九个平方。在空间利用上,除了考虑。收纳空间以外。还可以实现很多的,功能性需要。整个厨房较为狭小,没有直接采光。公共区域属于一个紧凑型的空间模式,由于是客餐一体,使得客厅空间被压缩,显得客厅过于狭小。
客厅
客餐一体,客厅朝南,采光比较好,由于整个结构比较紧凑,使得客厅空间被压缩,显得客厅空间较为狭窄,在设计过程中,将客厅比邻的观景阳台与客厅打通,增大了客厅的使用空间
厨房
厨房总共不到五个平方,由于整个楼宇的结构,使得厨房的采光只能通过。天井的间接采光。所以使整个不大的厨房采光过弱
餐厅
门厅入户花园大概有八九个平方,除了满足收纳空间以外,在设计过程中增设了一个休闲区域,简单的一个书吧,入户花园更加惬意,增加功能性,在收纳区域的考虑,除了考虑放当季或换季的鞋之外,同时增设了衣物处置区,换鞋坐凳及挂衣区,使收纳多样性得到满足,在花园与暂停之间增设了简易休闲吧台,记起到了花园和餐厅的分区,同时休闲区更加富有情调
