合能公馆94平现代风格
2020-11-28 15:12:51 查看人数 806
案例面积:94㎡
案例户型:三居室
装修造价:约14万
案例风格:现代
在有限的空间解决原结构不足带来的功能缺失,在形式上极力营造小家的温馨。
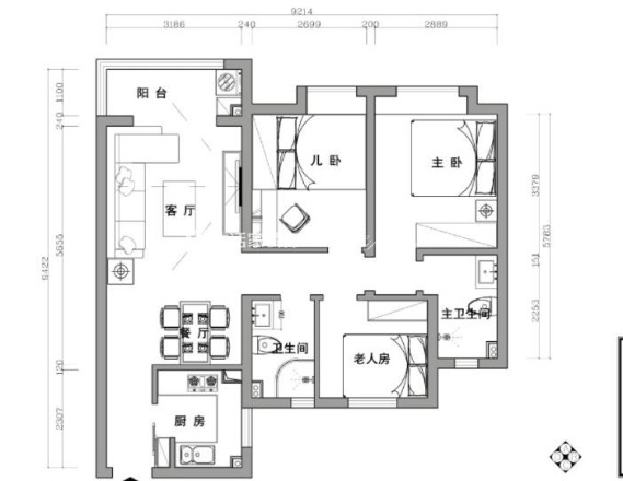
户型图
该房屋三口人居住,女主人为房产销售,工作非常繁忙,喜欢制作美食,男主人公司职员,孩子在上小学,所以在色调上尽可能营造温馨舒适的感觉。
客厅
客厅紧凑,周正,光线充足,由于是客餐一体结构,在设计上没有对客餐厅进行区域上的明显划分,造型设计上采用减法原则,使空间视觉感觉扩大,色彩上也是以一种大块分色为主,由于层高限制,用装饰板线替代传统吊顶,使空间更有层次感。
卧室
主卧室较为紧凑,除了衣柜空间以外,只能容纳一个床头柜及一米八的床。而且没有了通过空间,所以在设计的过程中将较为宽大的餐。卫生间进行了空间调整。来满足卧室的基本功能需求,为了满足卧室具备足够的收纳空间,衣柜进行了通顶设计,不让空间显得过分压抑,衣柜门采用局部玻璃门,增加通透感。
餐厅
由于是客餐一体的空间,而且餐厅特别狭小,所以咱餐桌选择上采用的是折叠折叠餐的形式,主要是通过装饰品来营造餐厅的氛围,由于餐厅附近的门厅区没有放鞋柜的区域,所以将厨房进行了后移30公分。来压缩出来储物收纳空间。保障储物功能。
