中铁新城 现代140平
2020-11-12 11:18:41 查看人数 2134
案例面积:140㎡
案例户型:三居室
装修造价:约18万
案例风格:现代
艺术来源于生活,生活中处处有艺术;这个房子的女主是一个既热爱生活,又很懂艺术的女主。一个自由职业者,每个角落都透露出她和家人的美好时刻, “既能装下生活中的细碎,也能装下家的梦和远方”,在空间上合理布局和规划让每个空间都亮起来。
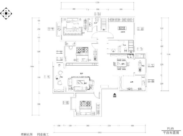
户型图
本方案是围绕简约为主题 140平 户型方正 南北通透
客厅
整体空间以简单的色彩为基调,辅以跳色、黄点缀局部,凝练出一种高级感与一丝灵动。空间功能性与美观性,为保持整个空间的清爽洁净的,所以丰富的储物空间是不可缺少的,受空间面积与布局影响,电视墙设计成一面以面贯穿整体增加视觉的延伸感,给人感觉空间整体感比较强,金属元素与石材的的局部运用,轻奢质感跃然而上,体块感厚重的沙发被高档的面料与轻盈的线条轻描淡写地隐藏了起来。
卧室
孩子房通过大胆丰富的色彩将精装房原有基础打破 重新定义家的温度,俏皮的艺术吊灯、古灵精怪的装饰画,充当整个空间的门面担当,回家成了翘首以盼的美好
厨房
细节是一种态度,入眸是至简而不平庸的惊叹,彼此之间相互呼应 、空间与色彩的运用自在与安逸完美切合。
餐厅
餐厅雅简洁的空间,没有复杂的装饰。一盏灯、一帘素麻窗帘简单地点缀出一隅静谧时光。在躺下的那一刻彻底放松,慰藉疲惫的身心,这大概就是回家的意义吧!
