莱安逸辉130平现代风格
2020-11-12 11:31:44 查看人数 2076
案例面积:130㎡
案例户型:三居室
装修造价:约18万
案例风格:现代
不仅注重居室的实用性,而且还体现出了现代社会生活的精致与个性,符合现代人的生活品位。全面考虑,在总体布局上方面尽量满足业主生活的需求,主要装修材料烤漆木饰面,壁纸为主,以烤漆木饰面的优美含蓄。
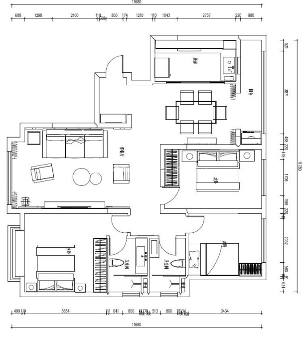
户型图
本方案是围绕简约的原色为主题,业主装修时总希望在实用、舒适的同时,体现一定的文化品味。三房两厅两卫 建筑面积大约:130㎡
客厅
客厅的灯具主要强调线条感,这种小而细的元素,让空间变得更有层次。空间结构上主要体现在墙面与吊顶上的造型,结合多元材质元素的组合,通过色彩搭配令空间呈现出丰富而绚烂的视觉感觉。
卧室
壁纸的朴素大方来装饰墙面的景点。更体现古典含蓄之感,创造一个温馨,健康的家庭环境。
餐厅
餐厅经过改造墙面延长和客厅统一风格对称,整个色调以灰色和金色点缀,通过的软装更富有生活气息,整体护墙板打造静谧、舒适、轻奢、高雅的空间状态,彰显居者的精尚品位。。
