三爻小区116简约轻奢
2020-11-10 15:51:04 查看人数 2120
案例面积:116㎡
案例户型:三居室
装修造价:约16万
案例风格:现代
本案例的业主是公务员,要求简单低调不奢华,同时对客厅的储物要求非常多,一整面墙都要做储物,由于是一层,外面的空间也想利用起来做成私家花园,可以满足日常的休闲的需求。主卧阳台的空间需要扩大,改造出一个卫生间的功能。女主人是老师,更注重细节,对设计的小细节要求比较高,同时更注重色彩的搭配和效果。
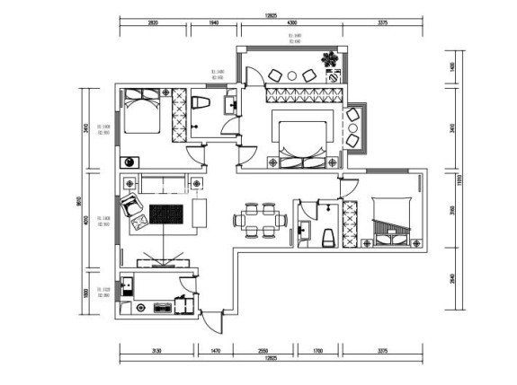
户型图
该原始户型为两室二厅一厨二卫的平层,整个房型区域比较规整,由于是一层采光不是特别好,但是客户喜欢黑白灰的风格,所以在材料的选择的时候柜子用了深色和白色的搭配,墙面尽量也浅色为主,同时考虑到更多的储物功能,柜子的设计上也考虑的更大化。同时柜子的功能分割也要尽量合理,不浪费柜子的空间。
客厅
由于层高不是特别高,但是客户要求中央,所以在吊顶的时候既要考虑到层高又要考虑到效果,电视墙采用木质和石材的搭配,
卧室
卧室充分考虑到实用和效果的搭配,让整体效果低调又有品质,而不显得那么奢华。
餐厅
餐厅设计了导台,中西厨结合的形式,可以有效的满足厨房空间解决不了的问题,同时餐边柜的设计,为西厨空间提供了更大的操作平台,冰箱采用镶嵌的形式,不显得突兀。
