星河湾108平现代风格
2020-09-21 20:06:19 查看人数 2032
案例面积:108㎡
案例户型:三居室
装修造价:约17万
案例风格:现代
以现代人的审美需求来打造富有传统韵味的事物;让传统艺术在当今社会得到合适的体现。
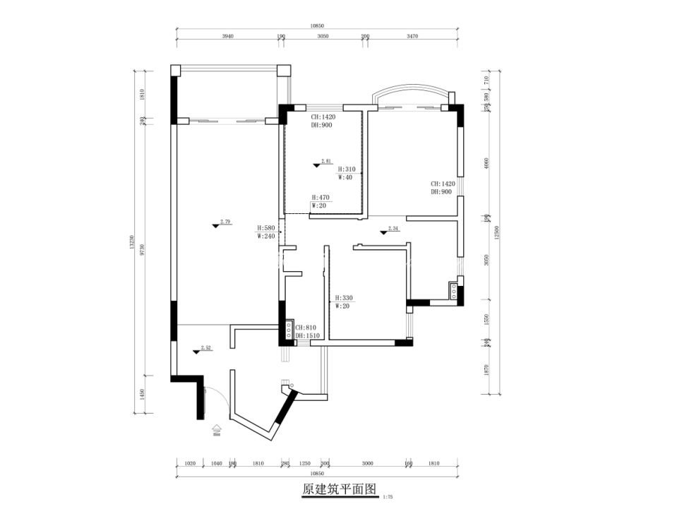
户型图
1、4人居住,夫妻两人,女儿7岁,儿子5岁,需要3个独立房间。 2、习惯台湾的生活习性,喜欢台式风格,需要开放式的空间,希望有中西厨空间。 3、人口比较多,希望有两个独立的卫生间。 4、需要很多的收纳空间,有很多手作需要空间摆放。 5、希望有阅读的空间。改造后平面布局图
客厅
这种风格是对历史文化的传承,内涵东方美韵,淡而雅,简而精;整体格调与门外的山水相互映衬,深处自然,安逸,自由。
卧室
步入主卧,午后的阳光撒入房间,暖意洋洋,舒服无比,强压力的时代中,找到适合自己的节奏,以优雅的姿态,健康快乐地享受人生。
