星河湾108平日式风格
2020-09-21 19:54:51 查看人数 1865
案例面积:108㎡
案例户型:三居室
装修造价:约16万
案例风格:日式
房间动线明确,动静分明满足储物功能,打造舒适的居住空间。
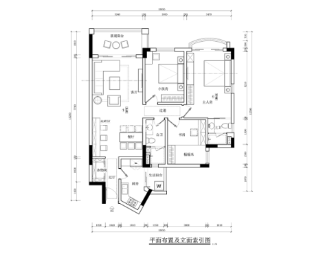
户型图
将原本景观阳台做成落地窗,改为看书聊天的休闲区,客厅定制隔板收纳展示业主收集的车模。
客厅
整个家没有过多的色彩,原木色家具是业主喜欢的,回家,开一盏灯、喝一杯茶,享受属于自己一个安静的空间。在周末晚上关上了手机,舒服窝在沙发里。
卧室
主调还是用的原木色,无论是在色彩、造型、陈设,还是功能的设计上都极力贴近自然,软装搭配上,设计师挑选了现代一点的物品,视觉上不那么纯日式。
