鑫江·水青花园上叠 220㎡
2019-03-10 11:50:10 查看人数 2244
案例面积:220㎡
案例户型:其他室
装修造价:约36万
案例风格:其他
小区位于城阳王沙路,边户上叠,共三层,地角没有嘈杂的马路,没有拥挤的人群,环境安静舒适,对于装修诉求可以简单概括为“户型虽大,温馨最好”,夫妻两人为商人,平时工作较忙,同时要照顾老人和孩子,第一次了解到生活家拎包装就知道是自己想要的 是符合自家要求的,家里要有独立书房、健身房、衣帽间、钢琴区。
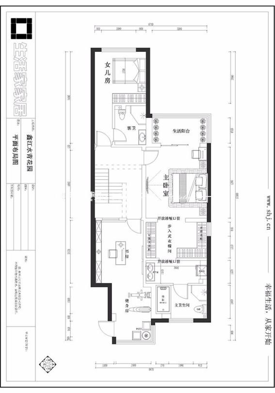
户型图
整体空间墙体改造较多,一楼的楼梯处,新建墙体加了铁艺玄关造型,解决风水问题,电视墙改造增加呈现面积;二楼墙体改造较大,楼梯口扩大,增加走廊空间,把书房加健身房作为独立空间,主卧缩小3平方同时主卧衣帽间增大。
客厅
一楼布艺家具和整体简美风格融为一体,无论是顶面吊顶、墙面造型或地面地砖拼花,都是为优越的房高增加层次感,整体的配色也是清新 暖咖导向。
卧室
主卧最为突出的是主卧加步入式衣帽间,与独立主卫,式为套房,其次为2.3米的大床,没有美式复杂造型,简单大气。
卫生间
卫生间的改造从原始的独立空间改造成干湿分离,双盆洗手盆与洗衣机为一空间,里面的空间用于嵌入式浴缸的摆放,淋浴区的空间,较大的窗户为主卫增加舒适度。
