宝龙艺墅村 170㎡
2019-02-24 10:57:16 查看人数 3389
案例面积:170㎡
案例户型:别墅室
装修造价:约30万
案例风格:现代
业主都是在航空公司工作的员工,常年在外地在航空中看过很多新型的设计材料,再家里的装修上要求 舒适为主,但也要求装饰的尽量精美。
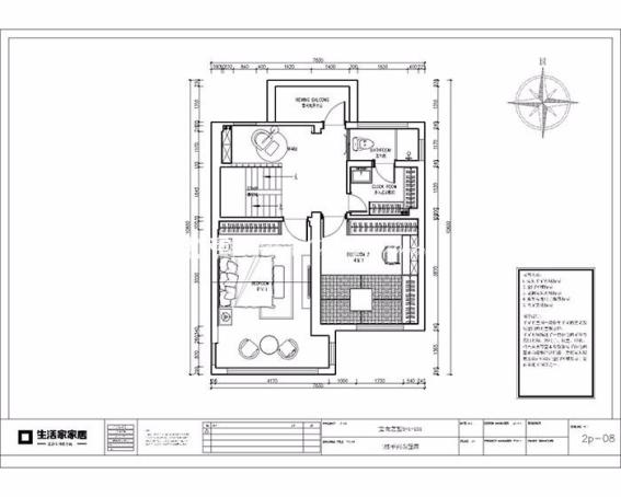
户型图
南北通透 卧室:南向主卧配私属卫生间、衣帽间,生活品质要求高。 车位:私家车库直接入户,安全方便快捷。 客厅:双厅联动,大面宽,享受大尺度生活。 阳台:主卧同时连接阳光与大露台,尽享美景。。 缺点:楼梯楼道太窄 搬运东西不便,阳台空间浪费空间功能,卫生间过多 储物空间较少
客厅
在客厅的空间设计上规避掉了常规的沙发应该靠着墙的设计理念,而做到了四周回旋式的空间设置,这样家里会有很深动的呼应。因男主身高较高,楼梯相对他来说会显得拥挤,再楼上空间上做了延伸,让你空间变大,采用装饰线条的设计元素来点缀楼梯扶手功能,即是装饰也是扶手功能。
卧室
卧室满足居住的空间 尽力的把舒适度做好,软床搭配软枕带你进去沉沉的梦乡。空间背景色很浅,给人巨大的平稳感,户型好,室外风光一览无遗,增加了卧室的呼吸感。
