滇池晴翠 105㎡ 法式轻奢
2025-10-31 16:23:06 查看人数 145
案例面积:105㎡
案例户型:三居室
装修造价:约15万
案例风格:轻奢
吊顶隐去主灯的喧嚣,筒灯、灯带与落地灯组交织出层次光影,以简约的克制美学,为空间注入恰到好处的温度。
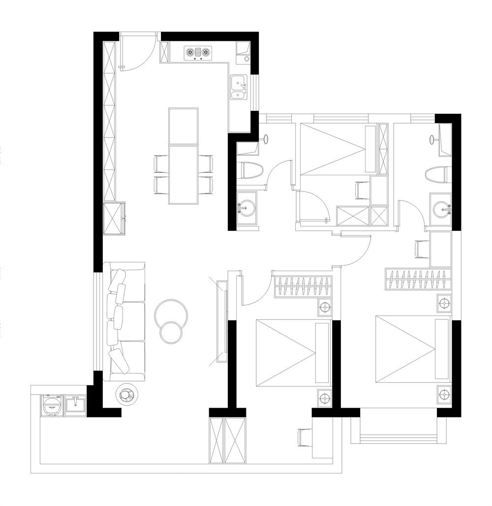
户型图
 
                                户型分析:原始户型方正,采光通用风较好,空间拐角少,动线流畅,空间利用率高。
 
                                户型改造:拆除原始厨房隔断,做开放式餐厨设计,在主卧与主卫之间增加一组L形储物柜,避免卫生间入口正对休息区。
玄关
 
                                入口两侧设置灰蓝色通顶储物柜,配以哑光全铜拉手,复古质感拉满。
 
                                鞋柜中部及底部采用开放式镂空与栅格背板穿插设计,优化空间通透性,塑造视觉层次。
 
                                嵌入式感应灯带沿留空区域布局,局部照明拉高立体氛围,营造光影交织的精致气息。
客厅
 
                                大规格灰色地砖流畅的延展开来,悄然化解了传统拼接的琐碎感,墙面以暖白乳胶漆为底,哑光肌理墙布与石膏线框搭配,在材质的温润碰撞中,勾勒出公共区域的雅致呼吸感。
 
                                吊顶隐去主灯的喧嚣,筒灯、灯带与落地灯组交织出层次光影,以简约的克制美学,为空间注入恰到好处的温度。
 
                                米色系直排沙发配以金属石材复合边几,以柔和色调与材质碰撞构建空间疗愈感,兼具视觉耐久性与温润气质。
 
                                墙面的雕花线框是法式风的灵魂所在,选用了极简的线条加以雕花点缀,凸显出精致感。
 
                                一旁的壁灯与沙发错落有致,不仅是空间的必备装饰,还能作为客厅的补充光源,让光影也更有层次感。
 
                                沙发背后有一扇面积不小的采光窗,搭配透光纱帘,在保证自然光引入的同时,形成柔和的光影过渡。
 
                                
                                                                                厨房
 
                                哑光质感的深灰色橱柜贴合墙面走向,将厨房电器内嵌入橱柜中,减少卫生死角让厨房更加整洁清爽。
 
                                开放式布局让空间规划更加合理,各区域既相互独立又紧密相连,如开放式厨房与餐厅融合,增强空间互动性和实用性。
餐厅
 
                                餐厅空间延续客厅的优雅,采用开放式布局与客厅形成视觉通廊,增强空间流动性。
 
                                石材与金属复合材质餐桌,搭配灰色丝绒餐椅,在材质碰撞中营造优雅浪漫的用餐氛围。
 
                                作为客厅与厨房的过渡区域,需控制家具密度以保持空间通透性,确保功能转换的流畅性。
 
                                水晶吊灯垂落而下,精工切割的灯面折射出璀璨光影,为用餐区增添轻奢与灵动。
 
                                餐桌加岛台结合,解锁更多使用情景,储物区、备餐区、烹饪区动线流畅,整体公共区域不做明显分界,让空间与人充分互动。
阳台
 
                                地砖无缝通铺至阳台区域,实现客厅与阳台的功能一体化整合。落地窗配以透光白纱帘,阳光透过时纱帘随风轻漾,形成明暗交织的柔和光影。
 
                                阳台转角区域定制一体化家政收纳系统,采用嵌入式安装工艺整合洗衣机等电器设备,或通过壁挂式设计实现垂直空间利用,在保持视觉整洁的同时最大化功能效率。
卧室
 
                                主卧空间延续客餐厅硬装基调,高肌理感墙面与低饱和色系软装形成材质对话,光影流转间营造舒缓休憩氛围。
 
                                
                                                             
                                地面通铺原木地板,以温润触感区别于公共区域的冷硬地材,在空间过渡中自然渗透居家温度,实现功能分区与情感表达的平衡统一。
 
                                主卫入口处定制L型通顶储物柜,巧妙化解入户直视卫浴的视觉尴尬,同时提升储物效率与动线私密性,营造更具层次感的居住体验。
次卧
 
                                次卧延续主卧空间色调体系,通过阳台一体化设计整合垂直储物系统与复合功能区,实现有限空间的效能最大化。
 
                                空调位规划于窗边并采用隐蔽式管线设计,以细节工艺提升空间整洁度与视觉统一性。
 
                                
                                                             
                                儿童房延续整体空间色调体系,靠窗定制榻榻米与书桌衣柜一体化设计,通过垂直收纳与复合功能设计,实现有限空间的多维效能转化,为成长型空间注入弹性可能。
 
                                
                                                                            
                     
             
                 
                 
                         
            
 
                     
                     
                     
                    