西派城樾 114㎡ 现代原木风
2025-10-31 15:53:21 查看人数 139
案例面积:114㎡
案例户型:三居室
装修造价:约18万
案例风格:现代
木质所独有的温暖、织物带来的柔软触感,在柔和灯光的映衬下相得益彰,悄然驱散空间中可能存在的疏离之感。
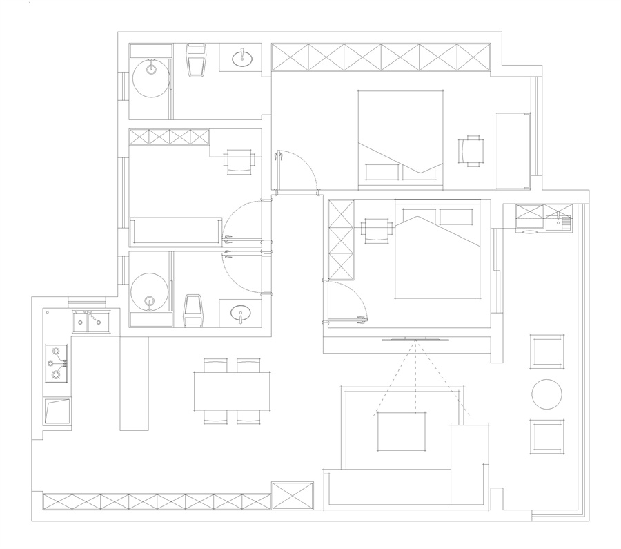
户型图
 
                                户型分析:原始户型方正,采光通用风较好,空间拐角少,动线流畅,空间利用率高。
 
                                户型改造:拆除原始厨房隔断,做开放式餐厨设计,公共卫生间做干湿分离设计,增加居住舒适度。
玄关
 
                                空间基调简单有序,以浅色的墙面和带了肌理感的浅色系木地板为基底,带来自然的质感与温度,让人瞬间放松下来。
 
                                入户右侧设整面通顶储物系统,原木色与暖白色交织,无把手隐形设计消解柜体厚重感。
 
                                中段开放式置物台与底部悬浮换鞋区形成垂直收纳动线,以“留白式”功能布局实现储物空间的弹性延展。
客厅
 
                                电视背景墙以通刷墙漆与原木落地储物柜构建极简基底,收纳系统将杂物、书籍及线路设备隐于无形,通过“去繁就简”的设计逻辑,实现通透感。
 
                                木质所独有的温暖、织物带来的柔软触感,在柔和灯光的映衬下相得益彰,悄然驱散空间中可能存在的疏离之感。
 
                                
                                                             
                                客厅空间以原木的天然肌理与奶油白的柔和基底相融,温润木质与纯净色调在光影交织中勾勒出明澈柔和的治愈氛围。
 
                                
                                                             
                                浅灰色的沙发柔软舒适,宛如云朵般给人惬意的坐感,摆放着原木边几和大地毯,利用储物柜转角打造记忆转角装置,共同构造出治愈而温情的互动空间。
 
                                采用筒灯与磁吸轨道灯构成客厅的无主灯系统,通过对光线控制与延展,实现视觉通透感与空间纵深感的双重提升。
厨房
 
                                餐厨空间经系统化重构,沿墙体定制L型功能橱柜体系,延伸吧台形成弹性隔断界面,将存储、备餐、清洗、烹饪四大功能模块进行一体化集成,构建高效流畅的复合型烹饪动线。
 
                                
                                                             
                                厨房操作区以浅灰色防污地砖形成功能分区,通过与浅色原木地板的材质对比,既明确空间边界又提升清洁效率,实现实用性与美学性的双重优化。
 
                                橱柜转角处延伸出多功能吧台,通过空间拓展形成备餐-轻食复合功能区,优化厨房操作动线,又分隔界定餐厨空间边界,实现功能集成与区分。
餐厅
 
                                当莫奈色盘坠入童话森林,餐厅以黄棕蓝灰绿五色渐变画布为基调,同步配置同色系四人餐桌椅组,搭配树形隔热垫则如枝桠间跳跃的精灵。
 
                                原木与丝绒的碰撞,极度克制地去弱化材质间的差异,以尽可能本真的方式呈现就餐区,营造出与屋主一致性的温润、纯朴和谦逊。
 
                                餐厨空间采用一体化设计,简约的布局、自然的采光和局部的吊灯,形成视觉上的统一,减少了杂乱感。
 
                                
                                                             
                                玄关柜延伸出餐边柜,设计置物区和展示区再内嵌电器,把餐厅的琐碎尽情收纳。
卧室
 
                                卧室以暖色系为基调,通过原木色地板的自然托底,搭配暖白床体、奶茶色窗帘及浅灰储物柜,以极简配色消解视觉冗余,营造出细腻而有层次感的休息区。
 
                                
                                                             
                                靠窗区域配置可移动办公桌椅,通过空间功能的重构,实现工作场景与休闲模式的自由切换,提升空间利用率的同时,赋予环境动态适应性。
 
                                
                                                                                次卧
 
                                小次卧垂直空间以吊柜组构建收纳系统,通过置入沙发床与可移动办公桌,既满足储物、休憩与办公的复合需求,又以悬空式设计维护地面视觉秩序。
 
                                
                                                                            
                     
             
                 
                 
                         
            
 
                     
                     
                     
                    