保利白沙林语115平三室现代装修实景案例
2019-08-15 15:47:47 查看人数 1362
案例面积:115㎡
案例户型:三居室
装修造价:约17.9万
案例风格:现代
设计基调定在明亮,舒适,简单。色彩选用最经典的黑白灰,黑白灰设计得好能让空间优雅并不显得单调。现在的简约风格成为时下最具代表性的风格了。一对创业成功的夫妻,有一定经济基础,注重生活品质。上班辛苦回到家想享受生活,能拥有一定的舒适感。所以家具都采用柔软度较好的家具,屋里设计都准备采用简单的线条。
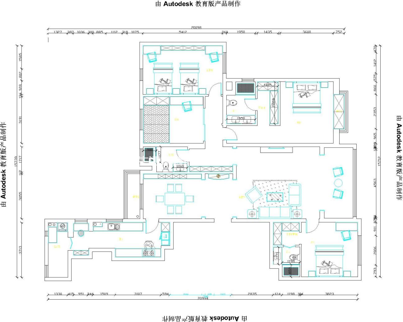
户型图
原始户型图
客厅
采用柔软度好的黑色沙发,呼应沙发,地毯采用黑白拼接,吊顶采用平顶,但是高低有变化。用简单的设计创造时尚。木色的电视背景墙增加了空间的轻奢感,皮质沙发与主人身份相呼应,体现了不一般的品味和身份。
卧室
床头做一个虚光灯带背景墙,飘窗,可以在休息之余看看书。地板采用深色木质地板,卧室黑白灰搭配和谐,简单大方。灰色的背景让整个空间显示出一种低调深沉的高级感,凸显出主人的品味。
餐厅
采用线条简单硬朗的餐桌,对应具有柔和感的圆形吊灯,简单的几何形体搭配出时尚感。餐桌上摆放一束鲜花,让整个空间更加有活力和生机,造型独特的餐椅更是体现了一种前所未有的舒适感。
次卧
色彩整体搭配偏浅色,使屋里明亮开阔。浅色木质地板增加温馨感。台灯选用一个跳跃的颜色,提升整体色彩度。床头上方的金属挂饰,提升了整个空间的轻奢感,整体颜色搭配透着一种高级感,干净、明亮。
卫生间
采用浅色系瓷砖,和防滑地砖。使空间看起来开阔敞亮。灰色的理石台面更干净,容易清洁打理。壁挂式马桶让卫生间的颜值上升很多,整个空间明亮,有序,超大的镜面增加了空间的通透感。
