中洲中央公园——唯美意蕴的沉淀130平新中式风格家装案例
2019-08-08 17:47:37 查看人数 1341
案例面积:130㎡
案例户型:三居室
装修造价:约23万
案例风格:新中式
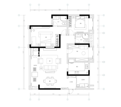
原户型的入门位置是个生活阳台,采光与空间视觉差,利用隔断推玻璃拉门把阳台分割出入户玄关门厅与生活阳台,回避了生活阳台的洗衣间。把入客厅的墙体打开,用现代的手法做一个传统文化符号的门廊与入户正玄关的矮柜非常和谐,让人感觉这一切都是为玄关正中的国画与石头做的嫁衣。设计师在与业主沟通需求后,感受到他们的生活习惯比较传统,这个家相当于是他们后半生的养老房,所以设计要求上要考虑得比较远。女主人是个比较细心的人,青睐较深的木色材质,喜欢简单素雅的环境,希望家的整体感觉要干净整洁。从业主经历的年代折射出对传统中国文化独特的偏爱,在与他们讨论后最终把家的整个格调定位为新中式。
户型图
原始户型图
客厅
硬装整体材质以浅色为主,搭配象牙白的软装和轻柔的室内灯光,让整体呈现一种莹润的质感。在空间上把原有的阳台隔断门取消,让阳台与客厅融为一体,敞开空间与视觉,保障外室里优质的采光与通风效果。
卧室
卧室与空间协调统一,整体设计一如既往没有浮夸,以传统与居家为标准。最点睛的设计就是床对面的木隔板,与放置的躺椅,非常简洁实用,满足了女主人的需求。在这里化妆,躺着欣赏窗外的景色,捧一本自己心爱的书籍,一天的疲惫都慢慢褪去。
餐厅
为了遮盖餐厅墙壁上的配电箱,设计师安装了一个现代传统符号的木质屏风,既完善了餐厅墙面与客厅墙面的协调对称性,又不影响设备的使用。墙面以高光深色的大理石作为点缀,配上深色木框家具,给人带来具有年代感的文化品味和不失现代的生活审美。
次卧
次卧采用大面积的条纹墙贴,没有过多亮色,风格自然,清新淡雅。布艺软床为空间增添了一分时尚元素,优质材料极具亲和力,躺在上面可以尽情舒展身体,放松心神。床表面的面料能够拆卸下来,通过简简单单的换洗就可以保持干净如新。
卫生间
卫生间选用了爵士白的石材和浅色云石地砖,墙面凹凸有致的线条增强了细节的立体感,地砖表面专门做了糙面处理,即使在沾水后也不会打滑,保障家人的安全。沐浴区与洗漱区进行了简洁的干湿分离,这样的格局让卫生间的使用更加方便。
