在线咨询
免费设计
免费量房
免费验房
京东生活家 / 装修案例 / 90 ㎡北欧风格

90 ㎡北欧风格

2018-06-03 14:13:59 查看人数 706

案例面积:90

案例户型:二居室

装修造价:约11

案例风格:北欧

设计理念:整体家居风格以北欧为主,欢搭一些工业风的软装配饰,业主是一对新婚的夫妇,对生活充满了想象,喜欢随时改变,不想有太多固定的东西,注重轻装修,重装饰的理念。整体用自

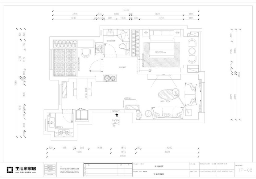
户型图

户型图工业风的软装配饰、自然的元素、居住在丛林中

客厅

储物柜工业风的软装配饰、自然的元素、居住在丛林中

卧室

储物柜工业风的软装配饰、自然的元素、居住在丛林中

飘窗工业风的软装配饰、自然的元素、居住在丛林中

餐厅

储物柜工业风的软装配饰、自然的元素、居住在丛林中

卫生间

储物柜工业风的软装配饰、自然的元素、居住在丛林中

案例设计师

已有 人预约

查看主页

精品案例推荐

查看更多
七彩云南第壹城 145㎡ 中古风

七彩云南第壹城 145㎡ 中古风

长水航城 105㎡ 原木奶油风

长水航城 105㎡ 原木奶油风

山海春风 165㎡ 意法混搭

山海春风 165㎡ 意法混搭

金地十一峯 151㎡ 意式轻奢

金地十一峯 151㎡ 意式轻奢

Hi~ 我是小葵 装修报价可以找我哟~