在线咨询
免费设计
免费量房
免费验房
京东生活家 / 装修案例 / 160 ㎡现代简约

160 ㎡现代简约

2018-06-03 14:08:09 查看人数 747

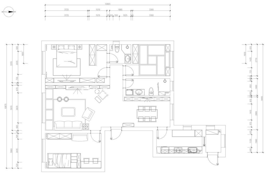
案例面积:160

案例户型:二居室

装修造价:约22

案例风格:现代

设计理念:业主是老师,喜欢书籍,所以把较长的墙面,用书柜的形式来做电视背景墙,增加书籍的储存量。常住人口为三人,沙发没有选择太大的沙发,所以以较短的背景墙作为沙发背景墙。

案例设计师

已有 人预约

查看主页

精品案例推荐

查看更多
七彩云南第壹城 145㎡ 中古风

七彩云南第壹城 145㎡ 中古风

长水航城 105㎡ 原木奶油风

长水航城 105㎡ 原木奶油风

山海春风 165㎡ 意法混搭

山海春风 165㎡ 意法混搭

金地十一峯 151㎡ 意式轻奢

金地十一峯 151㎡ 意式轻奢

Hi~ 我是小葵 装修报价可以找我哟~