原木北欧风,被太阳和月亮同时眷顾,沉醉在一刻的安静与悠闲
2019-06-22 10:05:13 来源:京东生活家 查看人数:471
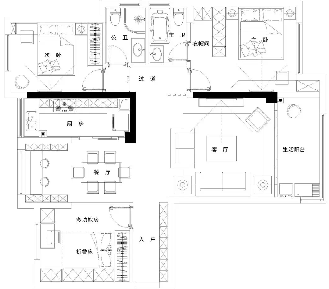
【面积】:96m²
【户型】:3室2厅2卫
【风格】:现代、北欧
【设计】:生活家装饰

“当落日余晖透过玻璃洒向客厅时,你所有的遐想都停留在了沙发上,沉醉在只此一刻的安静与悠闲中。”
从进屋的那一刹那起,你便能感觉到时间轻轻滑过指缝的温柔。
注重采光的北欧风
不同于寻常的北欧风,这间屋子虽然沿袭了一贯的简约,但却不止于一种清冷,每一室、每一厅的采光设计和软装搭配,都让整个屋子显得干净明朗且充满温情。

入户便见格局
与一贯入户便要穿过一段狭窄昏暗的玄关不同,刚进门,你便能被玄关开阔的视野震撼到。
进门处设立了换鞋凳,进出时也能享受一刻舒适,墙上的挂勾方便上下班时挂衣服与包包。
入户的玄关很长,一直延伸到了客厅,沿着墙面游走的还有硕大的壁柜。如果不是大户型,这样的设计往往会给人一种压迫感,但屋主却大胆尝试并且解决了这一问题,将入户的优势放大。



△改造前,多功能房的墙体挡住了光线,狭长的玄关很暗。

△改造后,多功能房折线处的墙体移除,改为全玻璃构造。
当多功能房的墙体全面移除后,入户处视野的通透性得到了巨大的改善。伴随着自然光的注入,被照亮的除了玄关,还有屋主的心情。
玄关的设计在保证了客厅隐私的同时,也给来访的人带来了一丝惊喜。

为生活留住每一缕阳光
日出日落,把握每一寸时光,才是对生活最好的回敬。
针对这个家,屋主的设计要求是干净明朗,让每一处空间都能享受光照。北欧风做到了干净,而明朗自然取决于光线。

△改造前,四面均采光,唯一暗处在玄关。

△改造后,多功能房墙体换为全玻璃结构,采光性能提升。
设计师的这一改动,使得整个动区的光线连通,无论你走到哪里,都能时刻享受阳光的陪伴。

宜工作也宜放松
多功能房间采用了榻榻米与书桌的结构,木色的搭配使得整个空间更加的空旷,白色与木色撞色也会更加和谐 。
这里应该是整个屋子采光最好的房间,三面透光。在这里,主人可以专心工作,也可以在午后爬上榻榻米小憩一阵,享受慵懒的阳光。玻璃墙面的设计让屋内与屋外达到互通,保证不会错过生活中的每一次精彩。


看似共享却“独立”
移步至客厅,整体线条简洁利落。沙发、桌子以直线和简洁流畅的曲线为主,造型简单,富含设计却不显夸张。
色彩多为单色 ,黑与白是极简主义的代表色,而灰色、黄色等纯色靠垫则带来了一种低调的宁静感,沉稳而内敛。
桌子脚下的异色地毯,与沙发色彩呼应,清晰地展示了其特性,将客厅与其他区域区分开来。



好好吃饭与随性生活
餐厅处采用了轻微的混搭,做旧木质长桌彰显了老式北欧的风范,简约的花瓶用于点缀,清新脱俗。
设计师在餐厅窗户处设置了吧台,与两侧的收纳柜连接,让居家生活更加轻松随性的同时也提升了空间的实用性。



简单,就是要好好睡觉
卧室色调以浅木色、白色、米色等浅色调为主,并适当地加以低饱和度的纯色作为点缀,给人时尚明朗、整齐干净的视觉感受。


为了美观,设计师在卧室与主卫之间做了衣帽间来进行隔断。主卫、衣帽间、卧室三分离的形式也给屋主带来了优质的居住体验。

△黄色区域:衣柜,用于隔断主卫和卧室。
红线:屋主活动线路。

同样,主卫的设计也是一大亮点。
花砖与白色浴缸的搭配既大胆也恰到好处,白色与木色相得益彰的搭配也保证了浴室柜的整体效果,使得各个部分的拼接混搭显得自然。同时,绿植的摆放保证了室内的通透性。
巨大的落地窗很好地将外部光源引入,并保证了卫生间的通风。


好的心情,一定要带回家,而家,是为了更好地帮你留住这份美好。
文章作者:家装丸
元
元


