四季金辉92平三室现代装修实景案例
2020-08-21 18:16:40 查看人数 1240
案例面积:92㎡
案例户型:三居室
装修造价:约16.3万
案例风格:现代
户型测量结束后,整体空间还算规整,设计过程中需要对细节做优化,并且对客餐厅和厨房的设计,色彩的搭配客户的家庭结构趋于稳定,一家三口,近几年不会有太大变动,房间布置比较常规,想要开阔的视野,敞开式的厨房,于是就有了本案.
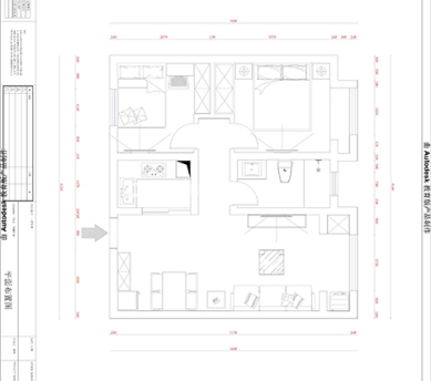
户型图
原始户型图
卧室
主卧在灰色调的空间基础,布置上灰色布艺床铺,摆上显眼活泼的碎花床单,床头墙也挂了一幅黑白黄的抽象画,配上浅灰色的窗帘,让简约的空间也显得跳跃自然。床尾的梳妆台连贯了床尾,带来更多灵活的收纳与展示空间,整体空间显得简洁而又舒适自然。
餐厅
横厅格局+开放式餐厨空间的布置,餐厅与厨房以开放式的格局装成一体的空间,在厨房与餐厅之间装了一个中岛台,小户型的空间却也显得宽敞自然。在厨房做饭的时候,孩子们就坐在餐桌上写作业或玩耍,促进家人之间的陪伴与情感。
次卧
儿童房整体简洁优雅的空间,搭配上粉色床单与窗帘,也让空间显得更加雅致温馨。飘窗旁边的柜体底部留空出开放格,连着窗台位置,为孩子提供了玩具的收纳位置,培养孩子良好的生活习惯。
卫生间
卫生间在黑白调的花砖地面基础,搭配橡木色的洗手盆柜,整体空间显得现代时尚好大方,淋浴房里面则是以灰色调的空间布置,使得空间充满时尚大气的氛围感。
