阳光城未来悦98平两室装修实景案例,小生活的极致
2020-06-02 19:13:31 查看人数 1266
案例面积:98㎡
案例户型:二居室
装修造价:约16万
案例风格:现代
小空间也有大作为,现代简约风让空间更加立体丰富,加强视觉空间上的纵深感。极具各项功能。业主户型面积较小,在设计上打算拉伸视觉上层次感,让空间更大。一暖暖的浅色调,让空间更加明亮。
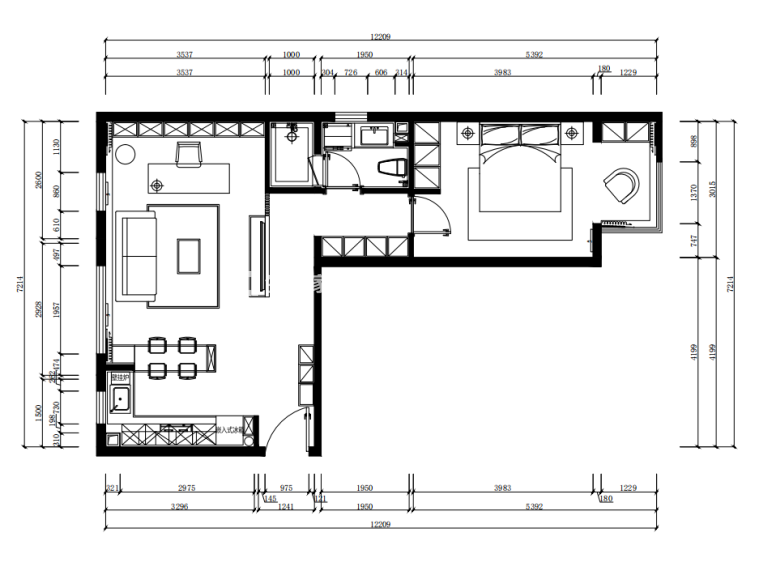
户型图
原始户型图
客厅
原木色调搭配极大的增加的室内明亮度,文艺且舒适的下午时光,舒服又温馨,给人温暖。
卧室
极大的增加了卧室的储物功能,藏于墙体之中,整体色调和搭配彰显空间张力,同时充满温馨。
餐厅
极大节省空间,疫吧台形式作为餐厅空间,并对厨房和客厅的完美隔离,没有多余的点缀,拉伸客厅长度。
次卧
次卧为小户型赠送扩改,拉伸上下空间层次感,让次卧也有大家风范,入墙柜子节省空间极大加强储物能力。
卫生间
卫浴空间较小,连为一体搭配节省电器的摆放,视觉上空间层次感加强和实用性的叠加,让卫生间不在局限。
