都会诚品106平三室现代装修实景案例,柔和的色彩
2020-04-09 11:04:12 查看人数 854
案例面积:106㎡
案例户型:三居室
装修造价:约18.3万
案例风格:现代
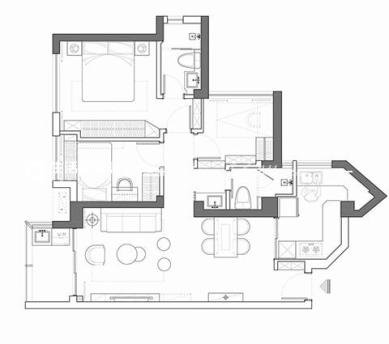
原始户型结构属于比较常见的三房设计,主卧室配有独立的卫生间,有单独预留的客房功能,同时户型还配备了双阳台设计,满足生活阳台同时,有了更大的休闲区域,属于屋主一家三口独享天伦之乐的休闲区域,整体户型方正,空间格局合理,功能细节待处理,整体空间动线明确,色调待定标准的小三房功能布置,房主于满足主卧的前提下,保留另外两个卧室的功能,预备了一个客房功能,同时为了生活方便也保留了两个卫生间的使用,保留了原始户型的宽敞阳台,打造了独属的休闲区域,为三口之家的生活增加了趣味性区域,休闲生活两不误。对于厨房整体空间结构改用了内嵌式单推门,不占用厨房的使用空间,厨房外的生活阳台保留了隐私性,生活也会更便捷。儿童房摒弃了传统常规房间的布置,更大的预留出活动区域,让空间更灵活多变。
户型图
原始户型图
客厅
客厅整体空间多以单一动线处理,线路更明确,整体的色调标比较暖,对比度,层次感比较强,空间实际想要的表达的空间对比也比较强,墙面材质处理上,电视墙选用简单质感的乳胶漆,个性统一,空间颜色相互应,会有材质上的延伸和对比,让地面的材质空间也得到放大,沙发背景大面的浅色,弱化整个墙面,深墙面对比个性的灯光也增加墙面的层次,顶面造型处理上选用了极简的处理方式,摒弃了传统的吊顶,顶面处理更干净,也能更好的保证整体空间层高。
卧室
主卧室简介明了,选用了最简单的处理方式,不论是顶面还是墙面都保留原始空间布置和结构,为了能让空间更大,增加了卧室的使用功能,方便屋主休闲娱乐。衣服的储物选用在了卧室正对面的墙面上,为了避免储物柜的单一性,在储物的同时也考虑了梳妆书桌功能,简单柜体收纳格的处理,也能让书桌的使用更便捷。
餐厅
餐厅空间相对来讲比较狭小,所以在家具尺寸的选择上,选用了相对较小的尺寸,来满足空间功能的需求,为了增加餐厅的功能需求,选用了错层的餐边柜,既能橱柜餐边饮酒的储藏位置,又能很好的增加储物功能,同时在餐椅的选择上也选用了长凳来代替原有的餐椅,目的也是为了节省餐厅的使用空间。中央空调风格选用加长风口,让风口的线条在顶面也能有延伸感,与地面材质也能呼应。
次卧
次卧为儿童房,颜色处理上用浅粉色作为底色,选用白色家具作为空间点缀,讲活动空间留了大部分出来,让孩子以后使用玩耍区域更便捷,也更方便。
卫生间
卫生间选用北欧风格感觉进行打造,让空间使用起来更方便,也更大气,暗藏辅助光源让空间层次更强,淋浴区域利用墙面和地面材质的样式处理,让小的局部空间自动分割出来,墙面设计了内嵌式的储物方式,保证的使用安全也更加显档次质感。
