实拍 |150㎡星海湾新中式风格四室装修实景案例
2020-04-05 09:56:29 查看人数 1329
案例面积:150㎡
案例户型:四居室
装修造价:约22万
案例风格:新中式
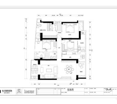
此案原始户型通透方正,入户区有个非常长的入户花园阳台,在空间布局上把此处阳台做了三段式的分割,分别是餐厅休闲区、厨房面积的扩大,与生活阳台大三功能。客餐厅十分通透,进户后有非常大气的观感。主卧区域把小书房融入做大衣帽间。了解传统,延承传统的同时将传统解构重组,连接配适到现代都市生活,传递中国传统雅韵是新中式房屋设计的理念所在。
户型图
原始户型图
客厅
在主调为“淡雅”的空间里,电视墙用恰到好处的明亮色系墙布搭配现代金属直线条,提亮空间整体的明亮度,丰富视觉层次。提起中式,必然少不了水墨画。客厅沙发墙上挂的是立体山水三联壁画镶嵌灯带,与电视墙相互呼应,装点拓宽客厅的景深效果。邀友喝茶聊话,有高山松柏清风薄雾相伴,亦不会让来宾感觉拘束,自有一番怡然。
卧室
在色彩上讲究均衡和平稳,新元素巧搭技法繁衍出自然舒展的格调。以米黄色隐形搭配孔雀绿,色景互借,书写高贵典雅;整体柜选用红棕色实木与明清家具、窗棂、布艺床品相互辉映,诉说着内敛含蓄的东方雅韵。
餐厅
与客厅并联的是餐厅,前者清浅淡雅,后者浓墨沉稳,二者交相辉映。稳重的实木家具加持天花板的中式走线镶嵌钛金线条,在暖暖的灯光下,彰显内敛沉稳。
次卧
采撷大量中式元素与现代材质巧妙兼柔,形成全新的现代中式风格再现移步变景。亮色三房通阳台隔断改造三个空间,保持空间利用最大化。整体空间设计张弛有度。
卫生间
传统的三段式卫生间格局,把浴室柜拉到一侧,做成双台盆设计,包管位的预留空间做出壁龛达到储物作用,壁挂马桶使空间感更加舒适。
