阳光城未来悦105平三室法式装修实景案例,感受法式浪漫生活
2019-12-26 15:08:11 查看人数 2157
案例面积:105㎡
案例户型:三居室
装修造价:约17.8万
案例风格:法式
进门便是一抹明媚抢眼的粉色,穿透在黑色烤漆餐边柜里,点亮一室的轻奢气息。柜子借鉴了建筑设计中的拱形结构,活泼且极具阵列构造感,镂空半满的造型洋溢着轻奢气息,为空间增条活力,带来满满的艺术格调。如何在实用性中,寻找自我个性,探究生活真实的需求,在喧嚣之外有一方自我沉淀之境,是我们设计思考的核心。每一处布局,每一件陈设,甚至于每一幅艺术装置的设计,源自于业主观览过的景色,看过的书,喝过的茶,都是业主本身的自我实用主义的反映,而背后则是现代人精神渴求,审美情趣以及文化素养的缩影。
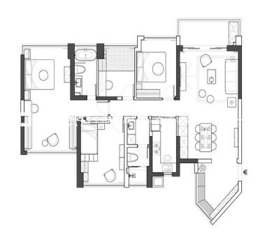
户型图
原始户型图
客厅
电视墙采用法式轻奢风格特有的几何设计元素,通过PU线条的剪裁,打造方正的矩形和疏密有致的线性框架。立体的质感也成就了视觉拉锯,增加了电视墙的艺术氛围。以电视为中心营造了左右对称的平衡感,强化了电视墙的仪式感,而两侧的环抱款轻奢壁灯丰富了空间照明的层次,在灰色底漆的衬托下散发出典雅大气的光芒。电视的功能或许已被弱化,但电视柜却是必不可少的,仅仅摆在那里,都会有一种家的踏实感。与电视墙的棱角分明不同,电视柜突破了常规样式,以椭圆的几何形状给空间增添了灵动感,让简单的生活变得妙趣横生,通透的玻璃柜面和电视屏幕一致,折射出整个家的精致典雅。提起轻奢风,我们总是第一时间想到水晶灯,但本案不走寻常路,特意选用银色的铝制流苏链条灯,极具创意与个性,打破千篇一律的搭配方式,使青年一代的审美雅趣与生活方式完美结合,打造了一个兼具艺术感与浪漫气息的空间。沙发背景墙用简约的曲线元素与丰富的色彩过渡打造设计的时尚风情,蓝色墙漆与主卧的背景色一致,以过道为延申,循序渐进,整体感强。而蓝色与白色的交界刚好与彩色几何挂画分色线重合,以此为界划分的色域区也颇有意思,蓝红灰绿,恰好是客厅色系组合,精心布置的家,每一个细节都突破你的期待。
卧室
天使的羽翼积聚着圣洁的光芒,流光溢出的瞬间彷佛置身于梦幻云端,一如既往的温柔。鱼骨拼地板给视觉增添了新的惊喜,摩登而复古,低调而富有魅力,另一侧的床头柜则是小巧精致,兼顾实用与美感,点缀少许小摆件,融合了生活中的美好,搭配属于自己的家。床尾的墨绿色鱼鳞纹斗柜也甚有韵味,金属球体拉手和别致的金属脚更是让人心生欢喜,其上预留了座位,可直接摆放电视充当电视柜。
餐厅
墙面可谓是最好的风景展示区,餐边柜上悬挂六项规格不一的装饰,既有家庭场景的复古油画又有精致典雅的镜子,看似毫无关联但都极具生活气息,精心设计过的排列方式让餐厅增添了别样的美感,成为家中一道亮眼的风景线。用餐想要舒适又有颜值,储物功能不可或缺,餐厅另一边是到顶的定制柜,粉色与灰色相间。流畅的线条没有任何多余的装饰,十分高级。延续轻奢与浪漫的基调,花纹清晰,质地均匀的大理石台面餐桌更能彰显主人品味,搭配形如蝴蝶,曲线优美的宝蓝色天鹅绒面与黑色木质餐椅,在金色的铝制流苏链条灯下,一种法式轻奢的优雅充盈室内。寻找那些有一瞬间感到似曾相识的事物,静下心来品味生活的沉淀,接受岁月的馈赠。选择自己想要的生活方式,法式不一定是满墙繁复的线条,丰富的色彩组合与不同材质碰撞的轻奢美,展现丰富的内在底蕴,阳光洒进室内,刚好的温度漫成的刚好是你喜欢的样子
次卧
次卧是为父母准备的,奶茶色墙面配上灰色绒面软包床,雾霾蓝色床品,浅金色腰枕,温馨淡雅的色调将卧室空间打造的雅致文艺,闲适淡然。床头那轻微突出的侧板,让人倍有安全感,令整个空间都生动起来。
卫生间
白色简单却能搭配所有颜色,而且,还能让卫浴间更清爽,开阔,搭配蓝色浴室柜于金色小五金,打造典雅大气之感。三分离的空间设计也极为讲究,打造酒店般的体验。独立浴缸也让人十分惊喜,简洁的造型,一体式设计,在每一个角落里都闪烁着精致的光芒。干净利落的曲线元素搭配大理石的天然纹理,精致的灯饰点亮一片柔和,轻奢感油然而生,晕染了不朽的浪漫情怀。
