简欧装修实景案例 时尚轻奢之家
2018-06-15 15:04:49 查看人数 1685
案例面积:121㎡
案例户型:三居室
装修造价:约16万
案例风格:简欧
本案例的建筑结构使每个空间都赋予了它的功能,所以在空间布局上增加一些业主需求的改动,从而使业主生活都以舒适度和功能性为主。业主工作相对比较忙,也装修过两套房子,来到生活家之后,业主对于这套房子还是有非常多的想法,储物、时尚、金属、色彩、欧式的感觉。听到这里,我的脑海中就有了一个现代都市生活的快节奏呼唤简洁与明快,所以就以温暖与放松成为家的主题,在融合业主的想法之后,更是让业主感受一种细致入微感觉。
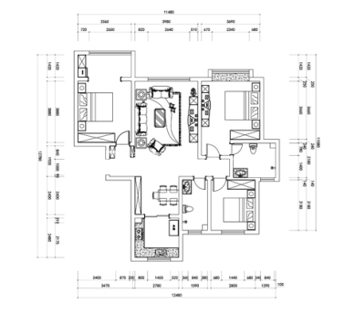
户型图
原始户型图
客厅
色彩的秘密,不是你想的那么简单,往往最疯狂的色彩都来自于对生活的乐趣与积累。在本案设计中,设计师采用丰富的颜色完美的展现出生活本该有的明媚感与轻松感.
卧室
在床头背景墙设计了一个赭石色硬包,赭石色在色彩中也最为最贵的灰色,所以赭石灰是喧嚣的钢铁城市给予我们的时尚色调,在高冷的气质中牵引着都市人的情感与理智。黄色有着接近太阳的色系,黄色的加入使空间充满希望。
餐厅
在高级灰为主的空间内加入橡木系家居,动与静的完美结合、冷与暖的自然相融,展现出明亮祥和的视觉效果,于喧闹的城市中打造一处安稳惬意的港湾。
次卧
在次卧的设计上延续了主卧的元素,两个空间面积一样的大小,所以两个房间的摆设几乎是一样子的。小业主小部分金色单品的搭配,轻奢高贵,为空间增添了奢华的细节和丰富的质感。
卫生间
在卫生间的设计上,更多的考虑的是细节。和空间使用的舒适度,并你没有做很多的造型,不过在马桶的背墙这一块,做了一个菱形的拼接,成为卫生间唯一的亮点,大气又失协调。
