金牛小区 120㎡ 新中式
2025-11-20 17:23:50 查看人数 2158
案例面积:120㎡
案例户型:二居室
装修造价:约15万
案例风格:新中式
故宫红与朱砂红,以小面积点染抱枕、单椅或挂画,如朱砂点墨,瞬间激活空间沉寂,喜庆而热烈。靛蓝与石青的色调承青花瓷之雅,冷静深邃如远山凝雾,于静谧中延展空间的悠远意境。
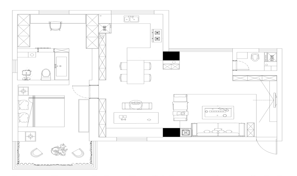
户型图
原始空间布局不合理,动线设计混乱,过多的隔墙将空间分割得过于零碎,采光通风也受限,导致各功能区面积分配不均,空间利用率低。
拆除非承重隔墙后,客餐厅、厨房等公区形成一体化布局,视觉上放大空间尺度,无隔墙遮挡使自然光线可穿透整个公区,减少阴暗角落,空气流通路径更顺畅。
玄关
以雅白、米白、暖灰为基底,摒弃纯白的冷冽,以低饱和度的温润质感,构筑空间的第一重呼吸感。颜色的过渡延伸,如晨雾漫过原野。
局部浅灰棕(大地色系),来源于木材和自然土壤的色调,低调内敛,能轻松带来温暖和安稳感。
局部浅杏色、米黄色,衍生自古画绢本和宣纸的色调,赋予空间一种文雅气质。
客厅
胡桃木色与深棕交织的沙发茶几,以天然木纹的肌理,凝练中式美学的沉稳气韵。柔韧皮质包裹,刚柔相济间,焕发温润生机。
石材与木质方正拼接,深浅对称铺陈,胡桃木电视柜以天然纹路沉淀气韵,刚柔相济间勾勒秩序之美。
故宫红与朱砂红,以小面积点染抱枕、单椅或挂画,如朱砂点墨,瞬间激活空间沉寂,喜庆而热烈。
靛蓝与石青的色调承青花瓷之雅,冷静深邃如远山凝雾,于静谧中延展空间的悠远意境。
靠窗布设沙发与小几,任光影在织物上流淌,抬眸见窗外树影婆娑,似有鸟鸣虫语穿窗而来,于喧嚣中辟出一方静谧,让生活悄然染上自然的惬意。
厨房
餐厨空间经系统化重构,沿墙体定制L型的操作台,拐角处延伸岛台形成弹性隔断界面。
将存储、备餐、清洗、烹饪四大功能模块进行一体化。
厨房拥有独立的采光窗,窗外景色和绿植摆件,与整体暖白色系的橱柜呼应,让厨房也可以“出片”~
橱柜转角处延伸出多功能岛台和餐边柜,内嵌厨用电器,放置咖啡机、饮水机等等形成一个复合功能区。
餐厅
开放式厨餐厅设计,用岛台与餐桌衔接的方式,各处空间彼此连接,又各自保留独立性。
餐厅没有选择深色的原木大板餐桌,而是选用橱柜台面同款石材,延伸出餐桌区域。
搭配黑色、米色的皮质餐椅,清爽的配色让整个空间更加明亮。
书房
循采光窗于沙发后规划开放式书房,博古架承茶桌同色系,瓷器古玩错落其间,光影交织空间如卷轴徐徐展开,温润雅意自成一方。
古韵素色自然衔接,融实用功能与文脉传承于一体,在若隐若现的灯光晕染下,空间恍若水墨氤氲。
卧室
卧室以清幽淡雅为基调,原生木质肌理晕染,丝棉织物垂落温润质感,瓷器、吊灯、隔断等器物错落有致,光与影在空间中流转相映。
中式空间中,灯具的选择尤为重要,一盏吊灯以金属骨架构建双圆结构,上圆承天,下圆纳地,素色灯罩如宋纸透出柔光,光影间隐现留白意趣。
金属的利落与纸质的温润相融,既承宋代极简形制,又现当代材质对话,于空间中沉淀出东方气度的从容与平衡。
衣帽间
将主卧一侧的小卧室墙体隔断拆除,与主卫相连,且依照墙体和采光窗的走向,设计成集合办公区和衣帽间一体的复合型空间。
