华润悦府 137㎡ 现代风
2025-10-04 15:12:48 查看人数 135
案例面积:137㎡
案例户型:三居室
装修造价:约10万
案例风格:现代
低饱和度为主+干练简洁的线条,用灰咖的极简与植物系的温暖木质元素间找到微妙的平衡。
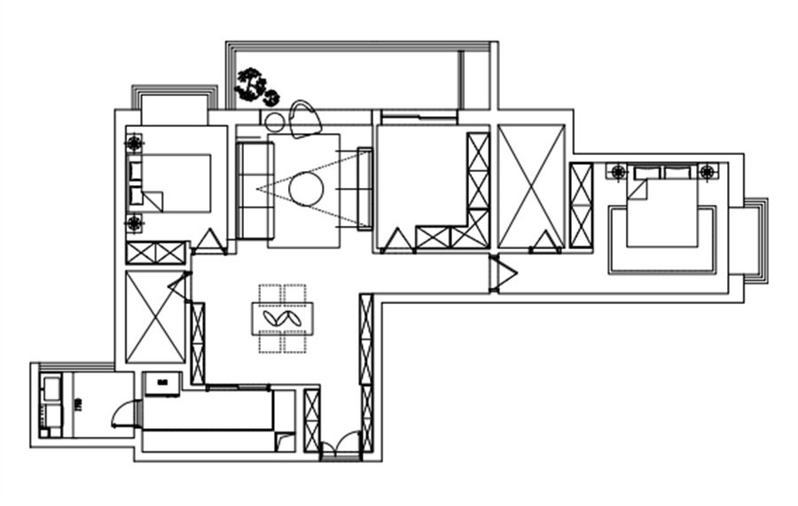
户型图


户型分析及改造 1.采光通风较好,动线流畅; 2.拆除与客厅衔接阳台之间的隔断; 3.整体无改动,仅增加储物空间和软装布置。
玄关

入户两侧做玄关柜,用于鞋物灯收纳,胡桃木色鞋柜+大理石背板,温润高级,免拉手设计,避免磕碰风险还好看。

换鞋凳、套格、底部悬空等组合搭配,层次感拉满。

客厅

大面积留白,暖白色艺术漆配咖色系墙板,灰色柔光砖配同色系美缝,用低饱和色系打造氛围感。


柚木雕花储物柜,独特的设计充满了装饰性和实用性,放上瓷质摆件更添艺术感。


浅棕和浅驼色拼接的皮质沙发,后方暖白与棕红拼接装饰画,用极简的线条、与材质的拼接搭配,让空间更富有艺术感,营造出独特的视觉享受。


黑色元素作为点缀,比如落地灯、茶几和单人椅,瞬间就有了时尚感,层次感狠狠拿捏。


厨房

暖白岩板台面,柜体则用浅灰色调肤感柜门,洗碗机、烘烤机等电器全部嵌入柜体中,让空间更具有整体性,同时减少清洁死角。


餐厅

厨房用玻璃门与之隔断,通透的视野+方便的动线,有效地拉进两个功能区之间的互动。

餐桌沿用石材台面+细腿餐椅更显轻盈,让整体色调也有很好地融合过渡。

玄关柜同款材质配色的一整面餐边柜,把 “收纳需求” 藏进空间里,不破坏整体简约感,还能随手放杂物、囤生活用品。


卧室

主卧作为家里主要的睡眠区,墙面再次运用到低饱和度的灰,可以让空间氛围更加静谧舒适,搭配原木元素,以及暖色灯光,又很好平衡了空间的冷暖,从而避免气氛太过清冷。


在理性的线条和克制的色彩下,天然材质带来的温暖触感,精心布局带来的舒适动线,在光影的加持下营造的浪漫情调。

次卧

次卧的软装搭配选用更加柔和的藕粉色、浅灰色和暖白色,在点缀一盏优雅的落地灯,让舒适感更加细致入微。



把小次卧打造成衣帽间,设计L形到顶储物,预留插线口和化妆桌的位置,简单办公和梳妆的需求都能一应满足,每天早上穿着睡衣进入,摇身一变精致打扮出场,心动指数持续上升。
