城市山 125㎡ 现代中古
2025-10-04 11:31:48 查看人数 128
案例面积:125㎡
案例户型:三居室
装修造价:约17万
案例风格:其他
铺贴木地板或是木纹砖是中古风的不二选择,纹理自然又散发温润质感。人字拼、鱼骨拼能营造出强烈的立体感与艺术感。
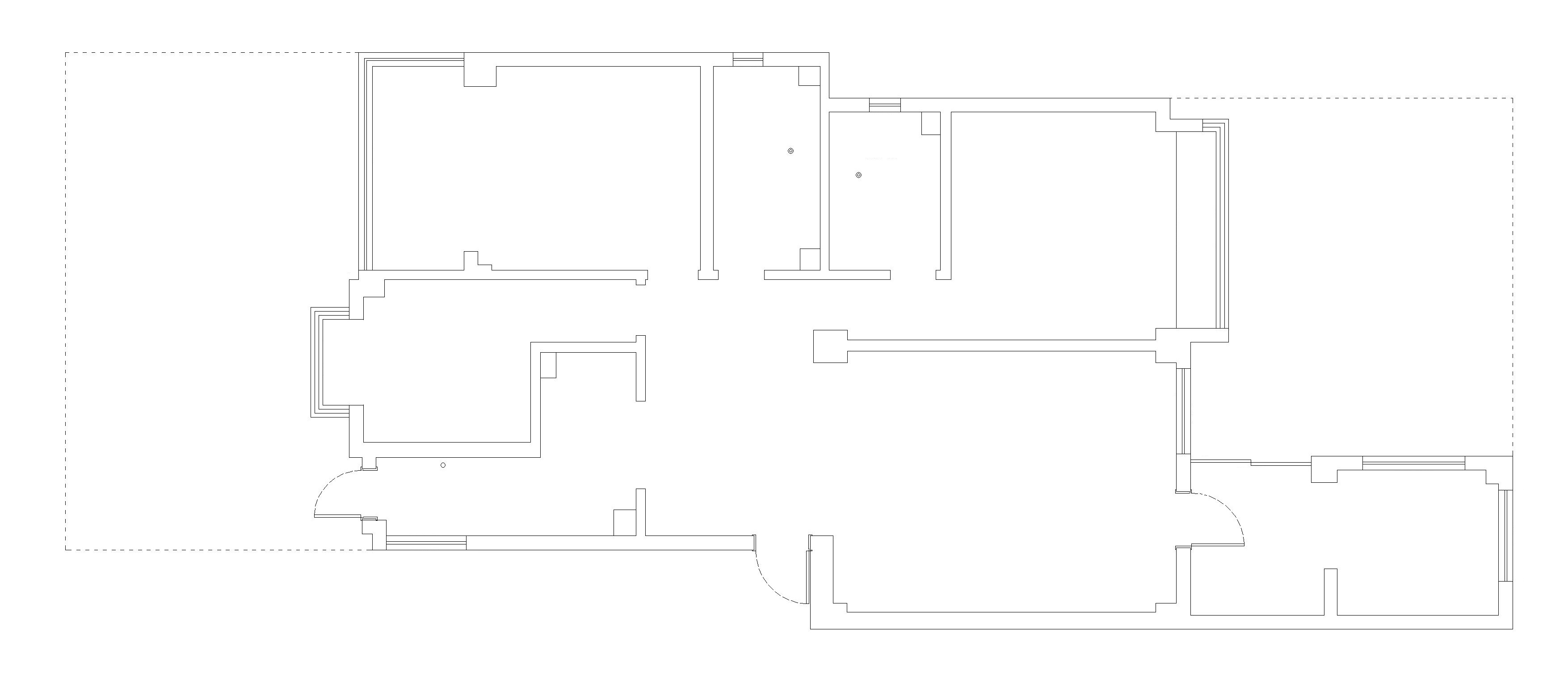
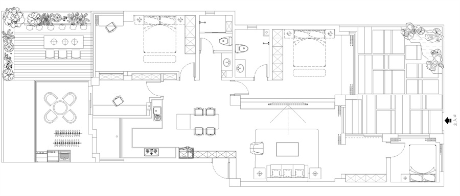
户型图

原始户型分析 1.有入户花园,功能利用比较高; 2.整体户型方正,且每个空间都有采光。

户型改造 1.把入户独立的衣帽间和过道凸出墙体拆除; 2.原始厨房拐角过多使用面积较小,拆除原始厨房与一侧的书房墙体,规整空间设计U形厨房; 3.搭建阳光房和洗衣房,增加空间舒适性。
玄关

地面:铺贴木地板或是木纹砖是中古风的不二选择,纹理自然又散发温润质感。人字拼、鱼骨拼能营造出强烈的立体感与艺术感。

玄关储物柜选用柔和的暖白色,褐色原木背板,下方悬空换鞋区,悬挑穿插的设计手法,诠释不一样的空间设计感。

客厅

墙面:采用低饱和暖色调,如汝窑,春雨、杏子灰等,或者铺贴有复古纹理的墙布、石膏线条和局部的小花砖点缀。


装饰画:选用复古海报、艺术肌理画、摄影作品等,都是中古风挂画的优质选择。

会客区:选择矮脚沙发,棕色、黑色、刺绣印花等经典色系的真皮或绒布沙发,搭配胡桃木的茶几、边几,不仅舒适耐用,还极具质感。


灯具:选择造型独特的吊灯、金属与木质结合的壁灯,如钓鱼灯、蘑菇灯等,能瞬间提升空间的复古氛围。

造型:适当运用拱门、弧形垭口、雕花等造型元素,能为空间增添柔和感与艺术气息。
厨房

玄关柜和电视柜同款的(上暖白色下黑色烤漆)的橱柜设计,搭配同色系石材台面,配色一致协调感拉满。


改变原始布局,减少厨房操作区的墙体拐角,增加采光与通风,动线也更加流畅。
餐厅

胡桃木大板餐桌搭配同源餐椅,巧妙糅合印花布艺与藤编元素,自然意趣悄然流淌,空间更显灵动通透。


玄关柜同源色系餐边柜把餐厅的琐碎尽情收纳,设计置物区和展示区再内嵌电器,让功能隐入空间肌理,生活便在通透处生长出艺术气息。


弧形的门洞垭口,打破常规线性框架,柔光倾泻而下时在地面投射出几何光影,为空间注入雕塑般的立体维度。
卧室

主卧色调依然延伸整体设计,暖白色的墙面,深色柜子,温暖和煦的灯光,整个空间安宁温柔,营造出浑然一体的空间感。

软装床品选用棉麻、绒布等材质,再点缀一点蕾丝或是刺绣小花边的,质感柔软,都是中古风的理想选择。

阳光露台

用玻璃门窗构建出阳光房的框架,白天,这里是明媚的阳光房,暖暖的阳光塞满了小屋,窝在椅子上来一场日光浴。

晚上,这里又变成了星空房,漫天繁星一闪一闪环绕四周,静静感受星夜流转。