华润润府 178㎡ 现代简约
2025-08-12 16:57:55 查看人数 1762
案例面积:178㎡
案例户型:三居室
装修造价:约10万
案例风格:现代
硬装造型简单,没有复杂多余的装饰,家居物品以不占面积、实用为主,灰色和燕麦色的主色调是打造低饱和温柔感的必选项,运用纯粹、直接、本质的材料组合排列,让每一个角落都有自己的氛围感。
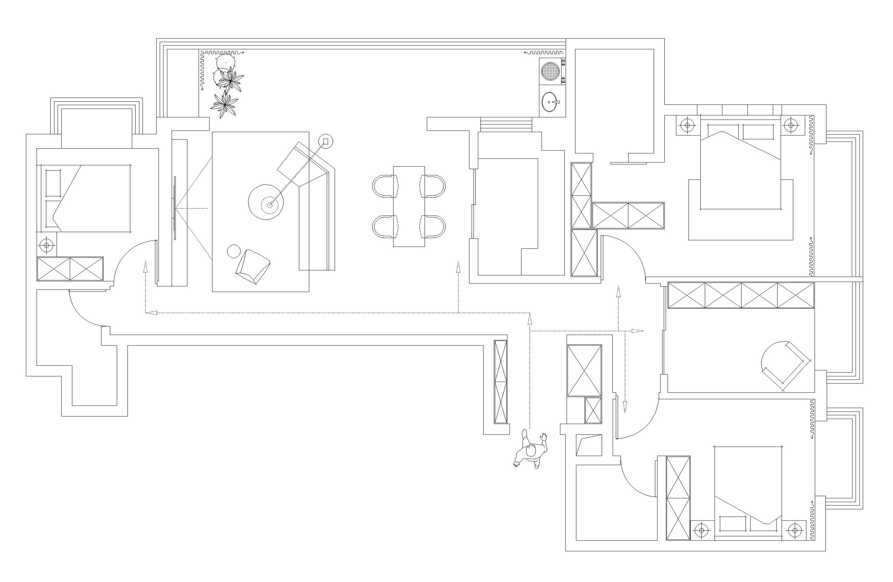
户型图

户型分析 1.户型方正,动静区分,实用性高; 2.每个房间都有窗户,保证采光与通风; 3.拆除原始阳台与客厅之间的隔断,把阳台空间纳入客餐厅使用,采光通风也更好。
客厅

灰色系石材+下方同色系拼接咖色系石材地台,打造电视背景墙,达到留白的效果。

客厅整体搭配以不占面积、实用为主,大面积的灰色和燕麦色是打造低饱和温柔感的必选项。

整个空间以无主灯设计为主,照明方式采用筒射灯、落地灯或灯带,在一整面落地窗的加持下,来创造出一种柔和而温暖的氛围。

浅灰色地毯和燕麦色异形转角沙发相辅相成,再用墨绿色和藕粉色单椅点亮空间。

角落里的装饰画和黑色边几,也是客厅不可或缺的亮点,呈现出丝绒般慵懒感。

整个客厅没有太多的装饰,只留下最纯粹的线条和色彩,让每个角落都流露出宁静与和谐。

阳台

落地窗与白色纱帘尤为搭配,当纱帘在阳光下,微风中微微摆动,瞬间感觉空气中都充满了粉色泡泡,梦幻感十足。放上可移动的宠物柜,把阳台改为萌宠乐园,实现铲屎官的快乐。
厨房

U型厨房+半开放式设计,让空间通透敞亮,(浅咖色/浅灰)撞色橱柜将厨房电器内嵌入其中,让厨房更加整洁清爽。

餐厅

餐厅有别与传统餐厅布置,改为咖色系石材台面吧台+灰色高脚椅,再用一组吊灯,以达到舒适的照明效果,充满轻盈感。


过道

过道暖白色墙面让空间显得更加干净纯粹,灰色调地砖让空间的层次关系更加清晰,营造了整体轻松舒适的氛围感。

设计搭配强调简洁,用玻璃隔断将光从衣帽间引入,来增加空间的延伸感和趣味性。
衣帽间

在空间布局上以内外通透为基础,不受实体墙限制的自由,把衣帽间的门改为吊柜推拉门,增加空间的采光,主打一个明亮又有层次感。

整个空间以温润的木质为主,靠飘窗的位置放上玫红色丝绒质感的休闲椅,让每一空间都充满轻盈与自由。