雅棠轩 109㎡ 现代风格
2021-07-14 15:30:16 查看人数 756
案例面积:109㎡
案例户型:三居室
装修造价:约19万
案例风格:现代
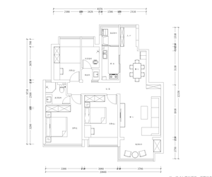
业主是一对年轻夫妇,房子主要是自己和小孩一起居住,想要一个有质感并且温馨舒适的居住空间。户型比较方正,改动相对来说不大,原始结构为三室,但是次卧的面积较小,设计师结合业主需求将主卧的衣帽间去掉,而扩大了次卧的空间,让居住者更加舒适。其他空间的设计更多的是以实用为主,将每个房间的功能性发挥到了极致
户型图
原始户型图
客厅
在空间上客厅与阳台打通,扩大空间感。客厅地面采用灰色纹路大地砖,结合黑白色的波导线与顶面吊顶相呼应。电视墙采用整块大理石上墙,加上银黑色的不锈钢点缀显得十分简洁大气。
卧室
卧室的空间以简单舒适为主,主卧背景墙选择与客厅同样材质的硬包装饰,加上金色不锈钢边条的装饰更有质感,衣柜柜门以及窗帘颜色的选择也是偏灰色调,整体颜色搭配带给业主一个非常放松的休息空间。
厨房
餐厅区域就位于厨房外,方便业主后期的生活动线。为了统一性,餐厅墙面也采用灰色的硬包装饰,餐桌旁边方式大容量的双开门冰箱,增加食材的储存空间。
次卧
次卧采用榻榻米、衣柜和书桌一体式的定制,最大化利用空间,兼具休息、娱乐、储物、工作和学习多种功能。
卫生间
将原卫生间墙面打掉一半,打造成半开放式盥洗室。这样卫生间和洗漱间完全隔开,相互不影响,同时半开放式的状态也让空间采光很好,实用性更强。
