绿城桃花源320平别墅新中式装修实景案例,墨色上醍一麾辻目
2019-08-20 15:44:50 查看人数 899
案例面积:320㎡
案例户型:别墅室
装修造价:约64万
案例风格:新中式
客户要设计风格轻奢主义,对生活的追求比较高。新中式具有中国传统风格文化意义在当前时代背景下的演绎,是对中国当代文化充分理解基础上的当代设计。新中式是传承传统中式风格的精髓,通过与现代潮流的对话碰撞而产生的创新。生活的诗意万象浮现于点滴日常,艺术的美感亦通过细节延展出诗意的具象。本案设定为一个艺术家之家,家的外在簇拥着一城繁华,我们的设计在于营造家的艺术与诗意内核,整体定位为书画服装创作工作室风格,呼应居者的身份,匹配对应的生活方式想象,让生活与艺术不期而遇,为居者的艺术生活增添意趣与情致。”设计师怀揣对生活的感知力确定了设计的主题。
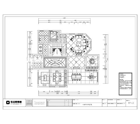
户型图
原始户型图
客厅
先锋的当代艺术漂泊在秩序井然的无垠世界里。灰色的主调搭配硬朗的线条穿梭在客厅的整个空间里,恰到好处的黑色,明亮了所到之处的一丝不苟,深棕木饰面,洗漱这现代风格的存在感,将视线拉回到传统审美的框架之中
卧室
踏步走入主卧,依然伴随着客厅的色调,红色起到引领空间,点缀空间的作用。床头横向矩形的软包靠背与床背的竖向矩形硬包形成对比,隐隐彼此抗衡。顶上排列整齐却又高低错落的水晶吊灯与脚边地毯上的图形相得益彰,恍然间不免让人回想起餐厅的灰色水墨画。
餐厅
秋窗日午,小厅无人。灰白与墨绿穿映于其中,加上金属元素的默契融合,辅以大理石墙与山水画墙布,雅致周到,极度契合主人对高端的追求,以及对中国传统文化的缕缕欢喜。透露出的是高雅的品味与独到的审美。流光溢彩的金,神秘沉默的绿,复古餐具传达时光的沉淀。仿若回到黄昏日落,负手庭除,菊花满前,案有旨酒,褪去光鲜亮丽,透过纯粹的质感,品一道用心的美食。
次卧
中式家具的光影摇曳在白墙上,生出山水墨画的意境之感,灵魂之间的碰撞来源于思考与实践,而在漫长的纠缠与固执之中,两者达成了高度的和解,红和蓝的交融点缀在四下里,像是理智的收容,映衬着隐隐的山水背景,颇为自然通透,抬头的一抹绿色,仿佛也在欣赏。
卫生间
黑色、白色年轻一代的主体颜色,就连小编也不能免俗,黑白灰经典时尚的配色体现了现代工业设计理念,简约、大气风格深受年轻人的喜爱,实木柜体和木地板,显得古朴稳重。
