实拍 | 120m联建新苑北欧风格
2019-08-02 18:43:15 查看人数 3168
案例面积:120㎡
案例户型:二居室
装修造价:约24万
案例风格:北欧
在设计初期,业主对于色彩方面有明确要求,清新一些,喜欢粉色系列。设计师利用裸粉色搭配浅蓝色背景墙,色彩浓烈又和谐,原阳台被打造成休闲区提高了空间的通透感,马克龙挂画的选用,在颜色上利用色彩鲜明对比,和萤火虫吊灯搭配更显空间的灵动性,更加温馨舒适。
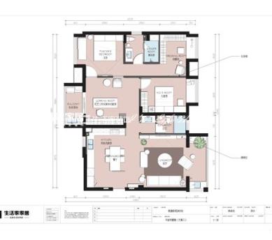
户型图
原始户型图
客厅
在设计初期,业主对于色彩方面有明确要求,清新一些,喜欢粉色系列。设计师利用裸粉色搭配浅蓝色背景墙,色彩浓烈又和谐,原阳台被打造成休闲区提高了空间的通透感,马克龙挂画的选用,在颜色上利用色彩鲜明对比,和萤火虫吊灯搭配更显空间的灵动性,更加温馨舒适。
卧室
多功能房使用频率不高,目前作为主人的娱乐空间,房间里没有固定的家具,只有一排衣柜和休闲茶几,让空间有更多的可能性,增加了空间的延伸性
餐厅
在空间上,业主希望是个舒适宽敞的空间,女业主有烘焙,插花等爱好,所以设计了开放式厨房,在空间上增加延伸感。在左边立体柜上嵌入了烤箱和吊柜,以便于女业主在今后生活中可以满足此类爱好需求,蓝色和白色让整个厨房都活泼了起来。在餐厅顶面设计师只做了简单处理,利用艺术吊灯增加空间暖光源,将层高尽量留给了空间,餐桌使用台面材质,更易清理卫生。
次卧
主卧也是满满的少女心,裸粉色墙面搭配黄色床板靠背让整个空间变的柔软,灰色不规则的床头柜搭配月亮灯,增加空间层次感,让空间宁静温馨。灰与粉的呼应,让空间每一处都不被孤立
卫生间
因为客卫做了淋浴房,主卫就只做了马桶和洗手池,主卫墙面用200*600的方块,搭配米黄浴室柜,制造出视觉的层次感,浴室柜采用隐藏式柜体,即增加收纳又让整体更加干净
