中华世纪城+137㎡+中式
2021-04-12 14:27:07 查看人数 825
案例面积:137㎡
案例户型:三居室
装修造价:约15万
案例风格:中式
楼盘位于雁塔区,曲江,地铁4号线途经站,配套设施齐全,比邻轻工。小区环境优雅,是一个不可多得的闹中取静之地。户型南北通透,客餐一体,结构周正。厨房通往北阳台,客厅东西墙长短差异性较大,北边卧室较小。
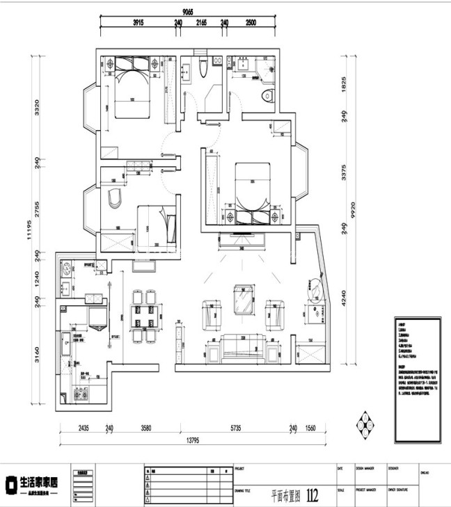
户型图
3室两厅1厨2卫 建筑面积大约:137㎡ ,花园洋房 顶层 7层,南北通透,客餐一体,结构周正。厨房通往北阳台,客厅东西墙长短差异性较大,北边卧室较小无明确门厅位置,导致鞋柜摆放位置困难,在方案设计中重点考虑客厅周正,北卧室提高空间利用率及鞋柜如何放置等问题。
客厅
客厅宽大,光线充足。东西墙不对称,为避免影响采光,使客厅空间对称。在设计上设计师结合中式风格的特点,将东墙的缺损处用中式镂空花格取代,解决了对成型的同时,也不会对采光造成影响。
卧室
靠北卧室较为狭小,南墙紧邻次卫。由于常住人口较少,可次卫生间的洗浴区去掉,让给次卧,用来解决空间狭小的问题。
过道
该户型进户属于一个大开敞,直接看到餐厅,没用独立门厅区域,鞋柜摆放存在问题。充分利用墙体厚度,将鞋柜含在其中,后背板砌薄墙做成嵌入式鞋柜解决此问题,在门厅地面设计上采用仿古砖加工,人字形铺贴,凸显中式风格的古朴韵味。
