新希望白麓城 126㎡ 轻奢风格
2021-03-13 11:28:05 查看人数 902
案例面积:126㎡
案例户型:三居室
装修造价:约19万
案例风格:轻奢
本案例以现代轻奢为主,用简洁的线条,温柔的色调,组合出温馨德空间,整体无多余的装饰,给人一种低调的质感。
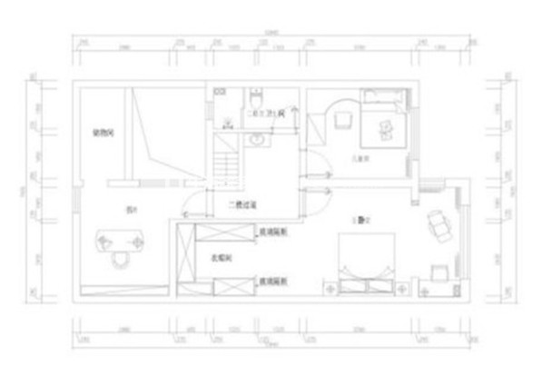
户型图
户型解析: 1.动静分离,分布合理; 2.厨房采光较差,收纳空间不足。
客厅
客厅:大理石台面收纳台与电视背景墙相呼应,半开放式设计,将展示及收纳一体化,不仅可以摆放小饰品,还提升整体空间效果。
卧室
次卧:设计采用温馨的路线,以灰蓝色为主体,色彩温暖柔美,书桌椅、书柜一体化设计,增加使用空间。
餐厅
餐厅:餐边柜搭配酒柜的组合双倍扩容,玻璃柜门的设计,更加勾勒出定制空间的美好。
