禹华苑130现代轻奢
2021-02-25 14:30:03 查看人数 1717
案例面积:130㎡
案例户型:四居室
装修造价:约13万
案例风格:北欧
至简的轻奢,客户是个30岁左右的夫妻两个人,有一个小孩。对空间需求比较大,想要独立衣帽间,还要预留二胎的床铺位置,对功能方面要求较高。
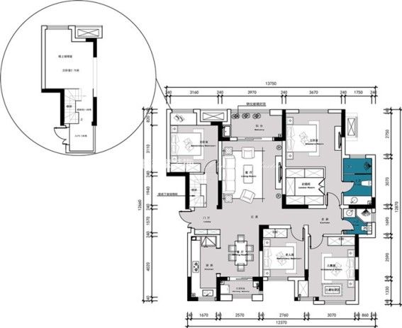
户型图
户型很方正,对空间要求比较大,想要独立衣帽间,还要预留二胎的床铺位置,对功能方面要求较高。
客厅
客户家里人口较少,目前只有三口人。所以在餐厅的位置做了一个卡座餐区。结合开放式厨房,让空间使用更方便。
卧室
主卧因为想要一个独立休息看书的区域,所以在衣柜侧面,做了一个可以躺卧的榻。床和柜子之间也用纱帘做了软隔离,使得床铺位置更有隐私感。
卫生间
卫生间也采用了大理石的花纹,用的上下分层的地柜,也不容易藏污纳垢
