蓝光公园华府145平简约
2020-12-03 11:29:02 查看人数 739
案例面积:145㎡
案例户型:四居室
装修造价:约20万
案例风格:现代
客户是装修婚房,夫妻两个都是做的整形,所以要求比较时尚,对新的东西比较能接受,对于现代化的东西要求比较迫切,客户对于新家的比较有想法,以是时尚为主。
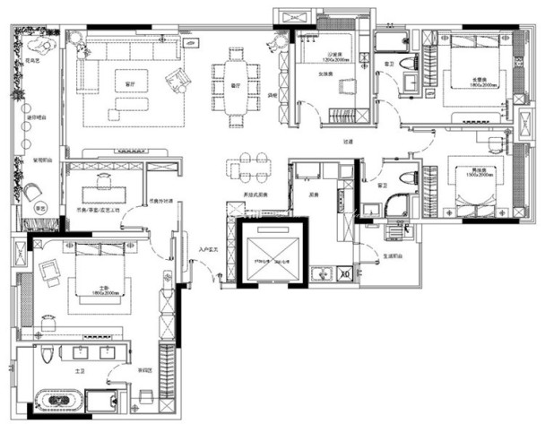
户型图
此套案例户型属于常规两室户型,南北通透,,入户就是一个餐厅,右面边就是一个大客厅,客餐厅一体户型能使整个空间感增大
客厅
因为整体户型比较小,客户以储物为主,对于造型上没有特别的需要,只是协调就行,所以电视跟沙发背景直接用了储物格的方式让整个空间看起来大方得当,又兼有储物功效。
卧室
通过调整主卧与客厅墙的布局 增大了主卧的储物功能 满足生活的基本需要
餐厅
餐厅其实就是由一个小过道组成,餐厅的尽头本来的一个端景墙,所以设计上直接砸掉,做了一个酒柜,让整个空间看起来通透又有储物,和设计的美感。
