阳光城壹号142平简约轻奢
2020-11-08 10:15:32 查看人数 1927
案例面积:142㎡
案例户型:四居室
装修造价:约26万
案例风格:现代
马上快退休的一对夫妻,改善型住房,考虑到以后小孩子和他们一起住。想要一些现代感比较强的设计。精致简约的奢华。
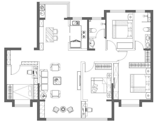
户型图
客厅和餐厅空间偏大所以把厨房一些电器摆放在餐厅 每个卧室的储物设置最大化 层高2.78 周边设计了吊顶造型。厨房空间偏小 卫生间空间很舒适。
客厅
客厅区域要求以简单的色彩设计出比较简洁明了的设计效果。房间内不能太暗。 金属线条精致耐看,就是轻奢的体现。
卧室
主卧是给孩子住的,所有颜色跳跃比较大。鱼骨型的地板,突出了业主不一样的需求,和个性。衣帽间的设计,解决了卫生间门正对床的问题。也方便了,业主卧室内空间的最大化利用
厨房
厨房空间不大 设置两组高柜 加大收纳 消毒柜 烤箱都是嵌入式的,吊柜和地柜拼色设计,大气简约
餐厅
客户家人口比较多,所以需求的东西也比较多,结合到比较小的厨房,所以经一些电器集成到了餐厅,收纳起来,使用更方便。
卫生间
卫生间考虑到人口居住较多,所以用到了双面盘的设计,加大了卫生间使用率。考虑到老人洗澡的方便,淋浴区地面采取了石材切缝的设计,加强了排水以及防滑性。保证了老人洗澡的舒适和安全性。
