棕榈阳光 150平米现代轻奢风格
2020-10-27 15:55:59 查看人数 822
案例面积:150㎡
案例户型:四居室
装修造价:约24万
案例风格:轻奢
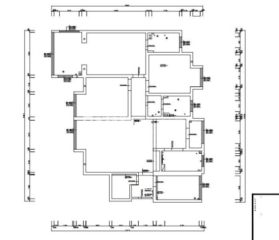
该原始户型为三室二厅一厨二卫的平层,是南北通透,整个房型区域比较规整,采光非常好,没有浪费的空间。
户型图
户型解析:三室两厅两卫 建筑面积大约:110㎡ 户型各房间设计规范合理。是南北通透,整个房型区域比较规整,采光非常好,半开放式厨房,没有浪费的空间。
客厅
根据客户实际居住情况,将客厅阳台打通设计,形成空间联动,整体大气有层次感,取代传统客厅空间的视觉中心单一,利用餐厅采光,让进门视角呈现长厅的采光和对流,空间的采光更加的充足。
卧室
主卧采光特别好,储物功能满足生活的基本需要。材质上结合了木质、墙纸和玻璃的元素 ,让整个空间端庄的同时也具有不饱和的呼吸感,更具通透的流动性。挂画和软装的搭配,让卧室更加的时尚,优雅。
餐厅
半开放式厨房更好打理。冰箱放在拐角更加的便利,充分利用空间,厨房门口的餐边柜设计增加储物的同时又与客厅的电视柜相呼应,提高空间档次。
