20W打造 泰禾院子 91m² 现代简约风格
2020-10-21 14:53:11 查看人数 952
案例面积:91㎡
案例户型:三居室
装修造价:约20万
案例风格:现代
本套方案设计师采用现代简约风格的设计方案。以简约为主的装修风格,特色是将整个空间效果达到以少胜多、以简胜繁的效果,,在设计中,空间色彩主要以白色和灰色为主,给人以舒适、干净的感觉,再以不同颜色的家具,给整体一些点缀,让整体不会显得单一,有违和感。再以背景造型,突出整体风格特点。
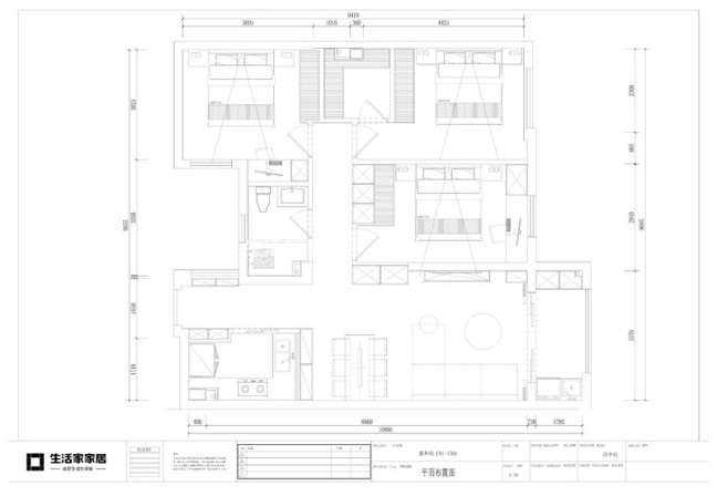
户型图
本案户型原结构是平层,面积有105平,户型南北通透,通风采光都比较好,面积利用率高,动静线规划清晰。原建筑中承重墙较少,使得内部空间可以灵活规划。最后出来的整体空间效果很清爽通透,空间动静线也变得更为人性化和合理化。
客厅
电视背景采用纹理简单的白色大理石,利用简单线条勾勒造型,显得非常的有层次感,单调而不平凡。客厅的落地玻璃窗,在视觉上看起来空间很宽敞,并且采光效果也很好。米白色沙发为整个空间增添一丝丝温馨的氛围。以灰白纹理的大理石作为地面装饰材料,光泽感极佳,使得整个客厅带有简约,富有现代感。
餐厅
餐桌是采用了简单纹理的白色大理石,与背景墙相互呼应再搭配灰色的材质餐椅,感觉就比较沉稳大气、低调内敛,有着很好的起到安抚情绪的作用,地面瓷砖也是采用灰白纹理的,和整体空间相对应,当灯光照射下来,显得室内空间格外的明亮光彩
