莱安逸珲120平现代风格
2020-10-20 14:32:25 查看人数 1188
案例面积:120㎡
案例户型:二居室
装修造价:约17万
案例风格:现代
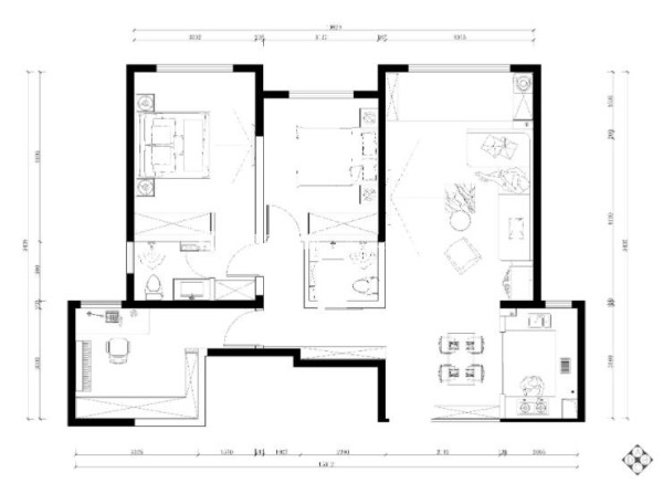
三室两厅两卫 建筑面积大约:120㎡ 户型各房间设计规范合理,纯南朝向采光充足。客厅外带有休闲阳台。主卧开间4.6米,是较为宽大的卧室开间尺寸,门和窗的位置也合理。主次卫生间相对较小。厨房6坪结构可做U型橱柜设计,家电等功能需求可以满足。
户型图
户型各房间设计规范合理,纯南朝向采光充足。客厅开间4.5米,餐厅4.1米。客厅外带有阳台。客厅附带的大阳台,用烘干机取代生活阳台功用,使休闲空间可以更多元化,避免浪费。主卫有6.8平,空间可以满足所有功能需求。厨房9坪还有带有独立洗衣房。空间功能齐全。
客厅
根据客户实际居住情况在进户门右侧增设鞋柜。砸掉阳台厚重的墙垛,打通客厅与休闲阳台,放大客厅空间,整体大气有层次感,取代传统客厅空间的视觉中心单一,增加客厅采光,让进门视角呈现长厅的采光和对流,增设地台、烘干机让原本的生活阳台化身茶室。
卧室
方案整体以现代风格为主。卧室墙体面积大幅度的运用了撞色设计。整体空间以高级灰为肌底,予人冷静安谧的视觉感受。阳光透过窗帘照射进来,为空间引入充沛的自然光线,营造轻松.....
餐厅
餐厅的整体色调和客厅相互辉映,橙色的背景挂画显得格外的高级,顶面和墙面同样加上金属线条显得空间特别的明朗。白色的钢琴安安静静的摆放在哪里,等着主人去抚摸它......
