丹轩坊143现代简约
2020-09-28 11:20:26 查看人数 744
案例面积:143㎡
案例户型:四居室
装修造价:约23万
案例风格:现代
楼盘位于高新区,配套设施齐全,紧邻高新一小,客餐一体,结构周正。厨房通往较狭小的洗衣阳台,导致厨房利用率较低,采光较差,餐厅区域紧凑,次卧较小,不太能满足孩子就寝,置物及阅读功能,空间利用率较低。
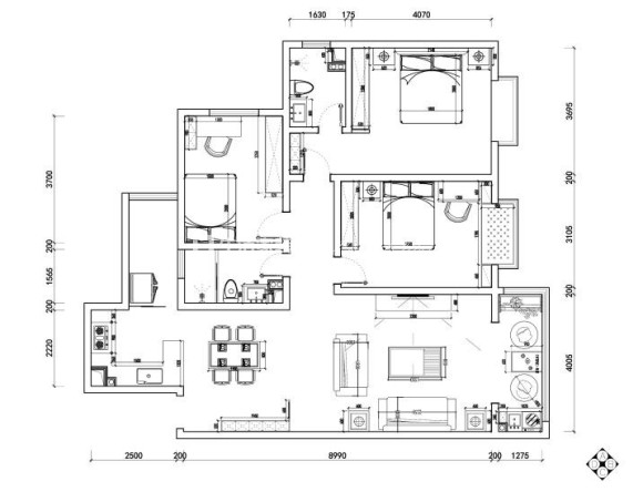
户型图
轩坊 143平 现代简约,楼盘位于高新区,配套设施齐全,紧邻高新一小,客餐一体,结构周正。厨房通往较狭小的洗衣阳台,导致厨房利用率较低,采光较差,餐厅区域紧凑,次卧较小,不太能满足孩子就寝,置物及阅读功能,空间利用率较低。 该户型位于高新区,学区房,户型紧凑,决定了户型功能设计上的舒适性定位,风格根据客户的需求定义为现代简约,在满足效果的同时,保障功能最大化。
客厅
客厅开间四米八,开间比较充裕,但是层高相对较低,采光充足,基于这种情况,客厅采用了无主灯设计,根据客厅活动的不同,分为营造出不同的灯光效果,同时凸显现代简约的格调,家里居住人口较多,所以在客厅考务了,考虑了置物电视墙,满足家里的收纳空间,同时不会让客厅过于凌乱。
卧室
次卧较小,不太能满足孩子就寝,置物及阅读功能,空间利用率较低。所以在儿童房飘窗两边位置增设了两书柜及置物架。中间增设书桌。原有有的卧室空间得到了最大化的利用,顶面采用的是石膏装饰板线,使顶面白色往墙面延伸,视觉上提升房屋的高度。
餐厅
厨房通往较狭小的洗衣阳台,导致厨房利用率较低,采光较差,餐厅区域紧凑,基于这种情况在。厨房设计为开放式厨房,与餐厅连为一体,餐厨一体解决采光问题的同时来满足餐储柜的不足,增加西厨功能。
