中庚香开长龙 157m² 台式现代风格
2020-09-26 10:37:33 查看人数 1090
案例面积:157㎡
案例户型:四居室
装修造价:约26万
案例风格:台式
台式是一种极为低调的设计风格,也是一种返璞归真的生活态度,现代台式最突出的特点就是简洁和实用,它不可以追求外在的修饰,而是采用天然的材料与色彩,搭配线条利落的设计手法,来实现功能与艺术的完美结合,打造一个简约而不失时尚感的家。
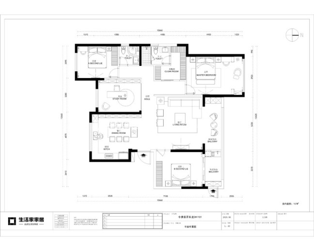
户型图
本案户型原结构是一个大平层套房,套内面积157㎡,宽景阳台,南北通透,没有暗间,采光好通风好,房间大小适中,都将利于室内的视线多方位拉长,为户型营造出通透明朗的空间氛围。
客厅
如果说,北欧风倡导搭配上的“至简”,那么台式风其实更强调营造出一个开放式的空间格局。过道的水磨石恰到自然的给客厅和厨房餐厅区域做了个分区,也是整个开放区域的一个点睛之笔。
餐厅
延续开放式的设计,当中岛台连接着客餐厅之间,最大限度的利用空间,视觉上看起来十分宽敞。采用了灰色色调和一些金属元素点缀,营造平静而不失时尚氛围。侧面酒柜大的极窄长虹玻璃在画面中显得非常时尚。
