滨海橙里51m² 现代简约风格
2020-07-28 17:14:45 查看人数 1398
案例面积:51㎡
案例户型:二居室
装修造价:约11万
案例风格:现代
家是心灵的港湾,“现代简约风格”以其纯美的色彩组合,赢得人们对它的喜爱。随着人们在旅游中感受到简约的魅力,“简约但并不简单的装饰风格”。当疲惫的身心对家的依恋越发强烈,人们想要的是轻松、自由的环境,“现代简约风格”自然就成为家居设计的一种风尚。
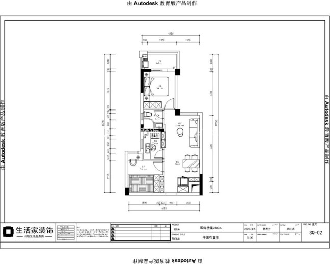
户型图
该户型标准为两房一厅一厨一卫双阳台,但客餐厅的面积偏小,需要把小阳台的空间整合到客餐厅内,使其空间合理。卫生间空间偏小,常规卫浴放不下,需要外扩。次卧偏小,常规床尺寸放不下,但空间已固定,不能外扩。整体户型区域划分清晰,采光良好。
客厅
客厅以疏朗宽阔作序,简化繁琐装饰,释放空间压力。灰色沙发与墙面色彩相呼应,至若春和景明,明媚风光破窗而入,追随居者生活的轨迹,描绘出这一屋清雅,一室酣畅,有种味道,叫做家,餐厅格局流畅且结构独立,简单明了的餐桌与餐椅等多元化材质搭配带来的层次感,清爽利落的线条塑造的宁静感
卧室
主卧因为是比较私密的空间,且一般是主人的活动空间,所以卧室内的颜色鲜以暖色调为主,给人营造出休闲、舒适的休息环境,让主人辛苦一整天后进入卧室第一眼就可以得到最好的放松。
餐厅
餐厅的设计以简洁为主,白色的精品柜搭配上原木色的餐桌和灰色的墙面,给人简洁大方的感受。 以及明亮落地窗创造的开阔感,让一家人在摇曳的烛光下,在弥漫的香气中,品尝精巧餐具中用心料理的幸福味道。
次卧
该房的次卧暂时当做客房,未来可能会换成儿童房,所以设计时考虑到两者的情况,用了稍微青春的蓝色,一方面为未来儿童房考虑,另一方面蓝色给人的感觉可以使空间变大,作为小户型的客房来说相对合适。
