雅居乐湖居笔记120平现代简约
2020-04-15 17:22:03 查看人数 2163
案例面积:120㎡
案例户型:四居室
装修造价:约23万
案例风格:现代
此案空间简单,让色彩成为主角,设计感则在细节里呈现。
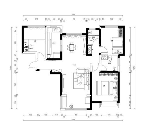
户型图
空间南北通透,布局合理制作了空间结构上局部改造,空间功能划分明确,美观的同时实用功能合理。
客厅
客餐厅光线充足,通风良好。为了彰显沉稳大气,突出设计感,在墙面材质上采用比较有厚重感的材质和顶面造型相互应,加上质感柔软的家具配置,在带来温馨、舒适的感觉之余,这里的家具配置都以功能性为主,但在简洁大气的空间基调下,将黑白灰三色做了很好的融合。
卧室
这个家基本上以高级灰为主调,搭配大量深色木饰面和质朴无华的灰色系,营造出一个高雅、安静、纯粹的空间氛围,置身其中一股浓浓的简雅气息扑面而来。
