谁说小户型好设计 亚泰城80平后现代
2020-03-06 11:48:46 查看人数 744
案例面积:80㎡
案例户型:二居室
装修造价:约18万
案例风格:现代
后现代风格就是在现代风格的基础上加入不同风格元素,白砖壁纸实木质感的隔断绿植都是方案中的亮点。
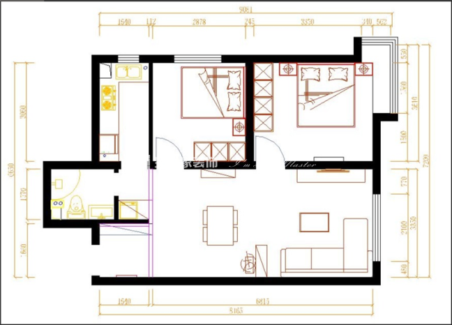
户型图
房主是一对年轻的业主,喜欢现代风格又不想太大众了,想要一些突出的特点。
客厅
客餐空间吊顶采用整体回字型设计,这样的设计配合地面波打线的呼应使整个空间简洁大方不失个性。客餐中间的木制玄关配合绿植装饰起到了区分空间和活跃气氛的效果。
卧室
主卧室空间刚好放得下两个床头柜,增加了实用功能,深色床头柜的点缀使狭小的主卧空间得以区分明朗。
厨房
由于厨房空间不大近身距离小,所有在设计时采用了白色的烤漆橱柜,这样的设计即最大限度的较小了空间的压迫感又增加了储物空间,白烤漆还具有类似镜面反光的感觉是空间放大。
餐厅
由于客厅餐厅空间大小接近失去了主次感,所以餐桌在规划中打破了正常的归边倚墙的设计而把餐桌布局居中从而分散空间,使客厅变大主次分明。
次卧
次卧空间非常小,高床头背景的设计使视觉重心转移分散环节压迫感,米黄壁纸的设计也对墙面起到了非常好的保护作用。
卫生间
卫生间空间较小,整体墙地面使用浅米色仿理石瓷砖铺贴,好处是温馨自然,无框倒棱浴室镜的使用让空间得到了极大的延伸。
