金地艺城瑞府124㎡现代简约案例
2020-02-20 15:04:29 查看人数 2090
案例面积:124㎡
案例户型:三居室
装修造价:约16.8万
案例风格:现代
业户是个性格好,内心很细腻的人!不喜欢花哨的装修,对个性的灯具和装饰情有独钟。之前的装修是自己配合装修的师傅一手抓的,比较辛苦。选择我们,想在保证装修效果的同时,希望能省心省时省事,这恰恰与我们公司的初衷不谋而合。
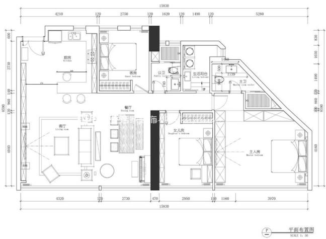
户型图
各个空间户型方正,整体空间开阔;全明通透户型,居住舒适度较高,整个空间采光充足;整体空间布局合理,能够保证动静分离和居室通风;各个功能区的尺寸比例规范,布局合理,能很好地满足日常功能需求。
客厅
客厅以大平面和简单线条为主,黑色的皮质沙发沉稳而有格调。沙发背景采用硬包处理搭配金属装饰满足视觉与舒适度的需求。客厅整体用黑灰色调,用橙色的座椅和软装进行点缀,使整体感觉不会太过于沉闷。
卧室
卧室采灰白配色,很有感觉,皮质靠背床搭配灰色的床品,对称的床头灯增加空间对称美。在主卧中有着纯美的感觉,灰色系搭配黑色单品,细节处体现了精致与简约,打造出时尚舒适的休息睡眠空间,整个空间设计师表达了随意、自然却又舒适安逸的生活态度,同时也传达着主人的格调与品位。
餐厅
品尝美食,是让人最愉快也是最轻松的时刻,金属餐厅处跟厨房没有隔断开来,转角就是厨房,让整个餐厅看起来更加开阔。灯释放出明亮柔和的光线,亮黄的跳舞兰,活跃气氛。
