【中铁世纪金桥】新中式风
2019-09-05 11:25:52 查看人数 1016
案例面积:123㎡
案例户型:三居室
装修造价:约18万
案例风格:新中式
此新中式风格的居室中,设计师运用了方与圆、明与暗色彩的对比,既有简洁硬朗的直线条广泛运用,更有不同基色的灵活组合,通过现代元素和传统中式风格的结合,在现代审美的基础上营造出传统的韵味。
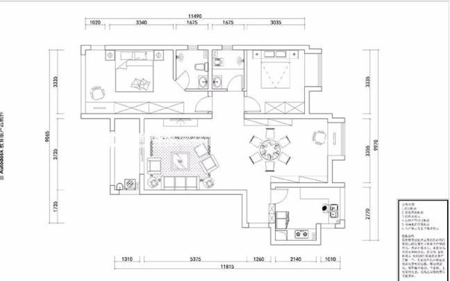
户型图
东向西入,户型朝西。原始户型双向对侧采光,对流,、通风都比较理想。户型的整体平面比较规整,面积利用率高,既有生活阳台又有休闲阳台。
客厅
客厅给人一种悠远、宁静的文化韵味。中国传统美学形式强调的是简素美,不采用过多的装饰技巧,体现出淡雅的文化气质,其中主要体现形式为简单素净的设计感。
卧室
卧室传统中又不失时尚,设计上床头背景、床品及窗帘颜色上相互呼应,用极富有生机的绿搭配米白色系,显得大方、稳重又不失活力。
餐厅
原木色餐桌搭配整体色调,奠定了沉稳大气的基调,体现出现代生活的气息,餐厅与书房的融合,采取采光性更好的位置,使餐厅和书房紧密结合。
