天朗美域小区89㎡北欧风格
2019-07-29 14:44:05 查看人数 892
案例面积:89㎡
案例户型:二居室
装修造价:约12万
案例风格:北欧
本方案采用的是北欧风格,这样可以解决电视墙和餐厅墙过短的问题,以大的色块儿来突出背景墙,搭配原木色家具,使小空间不再显得局促,更加的灵动活泼,厨房门洞扩大,做成推拉门,使客厅的光线进入厨房,解决了厨房昏暗拥挤的感觉。
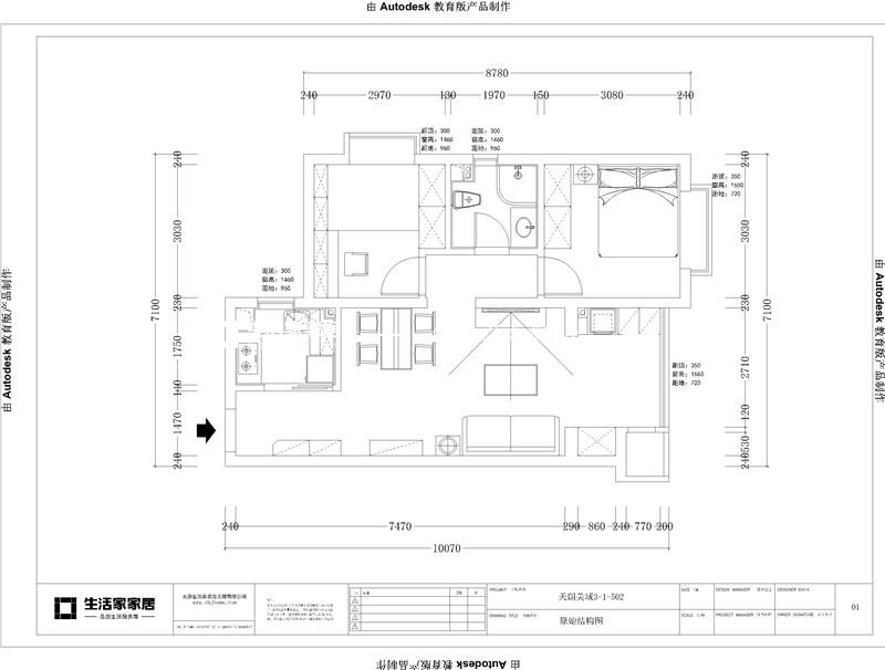
户型图

本方案采用的是北欧风格,这样可以解决电视墙和餐厅墙过短的问题,以大的色块儿来突出背景墙,搭配原木色家具,使小空间不再显得局促,更加的灵动活泼,厨房门洞扩大,做成推拉门,使客厅的光线进入厨房,解决了厨房昏暗拥挤的感觉。
客厅




此空间为客厅空间,采用了北欧设计风格,简约而不简单的设计,墙面整体采用灰色调,顶面四周用双层石膏板做的宽顶角线,与梁齐平,搭配现代简约的家具,搭配简欧的个性配饰,组合出来完美的北欧客厅。
卧室


卧室采用明亮的白色作为基础,搭配木色的家具,衣柜用木色板材做柜体,搭配白色木色间隔的柜门,更加灵活,不会很死板,加上床头背景墙的装饰挂画,简单清晰的表现出北欧的特点,左后窗帘搭配灰色增加设计感。
厨房

厨房整体采用灰白色墙砖,将冰箱嵌入橱柜中,既可以节省空间,又使用合理,柜门采用烤漆面的白色柜门,产生的反光,既可以增加空间的通透性还可以起到耐磨好擦洗的作用,使用起来更加便捷。
餐厅


餐厅空间依旧延续客厅的风格,灰色墙面搭配现代简约装饰画,木色的餐桌有着亲近自然,很舒适的感觉,边上放置一组餐边柜,即实用又好看,增加了储物空间,还突出了设计风格。
次卧



次卧为了节省空间,定做了榻榻米,旁边增加一组写字台加书柜,使用空间更加合理,榻榻米不仅可以增加休息的地方,还可以增加储物空间,蓝色的墙面使家里瞬间清新可爱,更加适合小孩子居住。
阳台

阳台采用了跟厨房一样的墙砖,避免了家里颜色太多,会显得特别乱,这样相对整体,然后充分利用了阳台边上的空间,增加了一组吊柜,下面增加了洗衣机柜,方便使用洗衣机是时候,还可以增加储物空间,还非常整齐。